Бизнес
Цена на кв.м: 2389.83
Тип апартамент: 2 - стаен
Квадратура: 59 кв.м
Година на строителство: 2025 г.
Строителство: Тухла
Етаж: 3-ти
Брой етажи на сградата: 6
Последен етаж
Отопление: Електричество
Обзавеждане: Необзаведен
Състояние на сградата: В строеж
Преход: Без преход
Особености: асансьор, гараж, паркинг
Описание
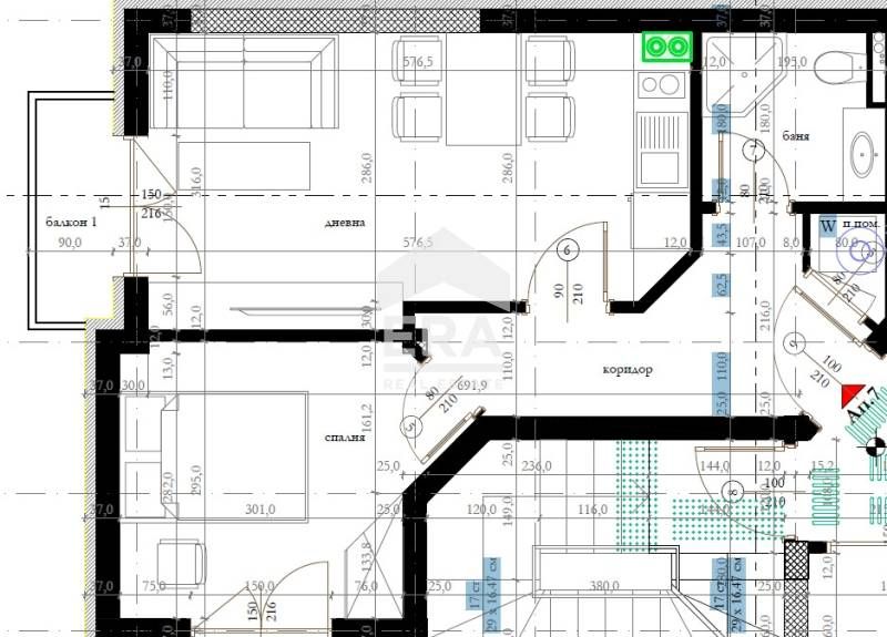
ЕРА Варна Тренд предлага за продажба двустаен апартамент, на среден етаж, в новострояща се красива сграда, район Гранд Мол Варна. Имотът е със застроена площ 51,94 кв.м (59,14 кв.м с общите части), разположен на трети етаж от общо 6 етажа. Състои се от дневна с кухненски бокс (20 кв.м) и излаз на тераса (3 кв.м), спалня (9 кв.м), коридор (5 кв.м) и баня с тоалетна (3,8 кв.м). Изложението е северозапад. Статутът е на апартамент.
Жилището се продава необзаведено. Ще бъде завършено до степен БДС, с поставена ПВЦ дограма. Отоплението ще бъде с електричество. Имотът е подходящ и за инвестиция чрез отдаване под наем.
Двустайният апартамент се намира в района на Гранд Мол Варна, в шестетажна тухлена сграда с отличаваща се визия и асансьор, на начален етап на строителство. Ще бъде въведена в експлоатация (Акт 16) през 2028 г. Има възможност за допълнително закупуване на подземно паркомясто, на цена 26 000 евро и подземен гараж, на цена 37 000 евро. Предлагат се и други двустайни жилища, както и един едностаен апартамент. Местоположението е ключово, в непосредствена близост до булевардите Владислав Варненчик и Васил Левски. Районът е много оживен и комуникативен. На пешеходно разстояние са хипермаркети Кауфланд и Лидл, Трети корпус на Икономически университет, основно училище, професионални гимназии, Автогара - Варна, Търговски център, Бизнес сграда, спирки на градския транспорт.
Оферта №0222109
Жилището се продава необзаведено. Ще бъде завършено до степен БДС, с поставена ПВЦ дограма. Отоплението ще бъде с електричество. Имотът е подходящ и за инвестиция чрез отдаване под наем.
Двустайният апартамент се намира в района на Гранд Мол Варна, в шестетажна тухлена сграда с отличаваща се визия и асансьор, на начален етап на строителство. Ще бъде въведена в експлоатация (Акт 16) през 2028 г. Има възможност за допълнително закупуване на подземно паркомясто, на цена 26 000 евро и подземен гараж, на цена 37 000 евро. Предлагат се и други двустайни жилища, както и един едностаен апартамент. Местоположението е ключово, в непосредствена близост до булевардите Владислав Варненчик и Васил Левски. Районът е много оживен и комуникативен. На пешеходно разстояние са хипермаркети Кауфланд и Лидл, Трети корпус на Икономически университет, основно училище, професионални гимназии, Автогара - Варна, Търговски център, Бизнес сграда, спирки на градския транспорт.
Оферта №0222109
ID: 146371003
Контакт с продавача
xxx xxx xxx

