Бизнес
Цена на кв.м: 1302.67
Тип апартамент: 2 - стаен
Квадратура: 75 кв.м
Година на строителство: 2027 г.
Строителство: Тухла
Етаж: 2-ри
Брой етажи на сградата: 5
Последен етаж
Отопление: Електричество
Обзавеждане: Необзаведен
Състояние на сградата: Завършена
Преход: Без преход
Описание
Предлагаме Ви двустаен имот за продажба, разположен в новострояща се сграда в кв. Владислав Варненчик.
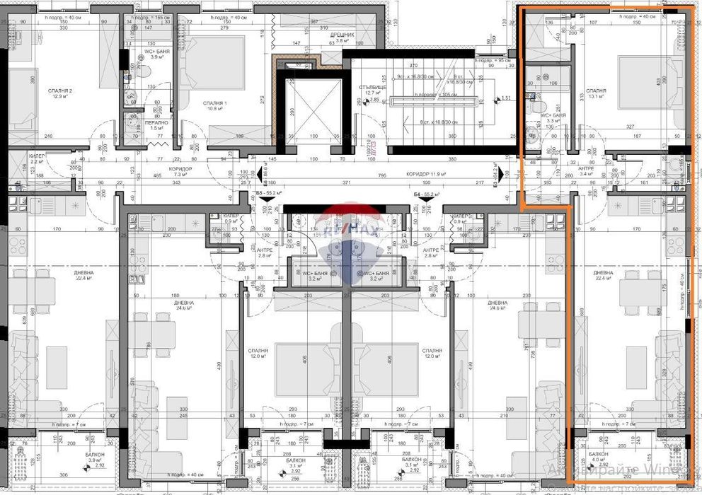
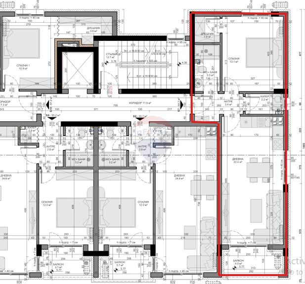
Жилището е със статут на апартамент, разположено на четвърти етаж, с чиста площ 64,20 кв.м., разпределени в:
* дневен тракт с кухненска част /24,7 кв.м./
* просторна спалня /11,7 кв.м./
* общ санитарен възел /3,20 кв.м./
* тераса /4,9 кв.м./
* килер /0,9 кв.м./
От дневния тракт има излаз на тераса. Към имота има 10,90 кв.м. идеални части от общите части на сградата и от правото на строеж, както и идеални части от дворното място.
Жилището ще бъде издадено по БДС.
Сградата е разположена в тих и зелен район, който е подходящ за целогодишно живеене, като предлага спокойствие и чист въздух. В същото време, тя е в близост до основни транспортни връзки, хранителни магазини, училища, детски градини и други удобства, които ще направят ежедневието ви удобно и лесно. Проектът ще бъде изграден с висококачествени материали, които гарантират дълготрайност и енергийна ефективност, осигурявайки комфорт през всички сезони.
Сградата разполага със свободни двустайни и тристайни апартаменти. Отличаващият се модерен архитектурен дизайн на сградата, ведно с комуникативната локация предлага удобството на града в съчетание с тишината на природата. Панорамни гледки, просторни стаи и помещения, лесен достъп, близост до основни пътни артерии и комуникации като хранителни магазини, училища, детски градини и автобусна спирка на метри от имота, правят сградата отличен избор за желаещите тишина и спокойствие на една ръка разстояние от удобствата на града.
Жилището е със статут на апартамент, разположено на четвърти етаж, с чиста площ 64,20 кв.м., разпределени в:
* дневен тракт с кухненска част /24,7 кв.м./
* просторна спалня /11,7 кв.м./
* общ санитарен възел /3,20 кв.м./
* тераса /4,9 кв.м./
* килер /0,9 кв.м./
От дневния тракт има излаз на тераса. Към имота има 10,90 кв.м. идеални части от общите части на сградата и от правото на строеж, както и идеални части от дворното място.
Жилището ще бъде издадено по БДС.
Сградата е разположена в тих и зелен район, който е подходящ за целогодишно живеене, като предлага спокойствие и чист въздух. В същото време, тя е в близост до основни транспортни връзки, хранителни магазини, училища, детски градини и други удобства, които ще направят ежедневието ви удобно и лесно. Проектът ще бъде изграден с висококачествени материали, които гарантират дълготрайност и енергийна ефективност, осигурявайки комфорт през всички сезони.
Сградата разполага със свободни двустайни и тристайни апартаменти. Отличаващият се модерен архитектурен дизайн на сградата, ведно с комуникативната локация предлага удобството на града в съчетание с тишината на природата. Панорамни гледки, просторни стаи и помещения, лесен достъп, близост до основни пътни артерии и комуникации като хранителни магазини, училища, детски градини и автобусна спирка на метри от имота, правят сградата отличен избор за желаещите тишина и спокойствие на една ръка разстояние от удобствата на града.
ID: 146005053
Контакт с продавача
xxx xxx xxx

