Бизнес
Цена на кв.м: 1207.69
Тип апартамент: 2 - стаен
Квадратура: 65 кв.м
Година на строителство: 2027 г.
Строителство: Тухла
Етаж: 3-ти
Брой етажи на сградата: 5
Последен етаж
Отопление: Електричество
Обзавеждане: Необзаведен
Състояние на сградата: В строеж
Преход: Без преход
Особености: асансьор
Описание
Компания `Х` представя на Вашето внимание двустаен апартамент в Южен.
МЕСТОПОЛОЖЕНИЕ: Южен е един от най-бързо развиващите се и удобни квартали на Пловдив, предлагащ отлична инфраструктура, ново строителство и множество магазини, супермаркети и услуги. Районът е добре свързан с центъра чрез удобен транспорт и ключови булеварди, което осигурява лесно придвижване. Спокойната среда, зелените площи и близостта до училища и детски градини го правят предпочитан за семейства и млади хора.
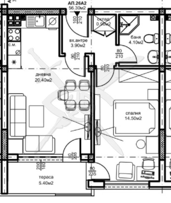
РАЗПРЕДЕЛЕНИЕ: Разполага с площ от 65 кв.м., разгърната в следното функционално разпределение: кухненски бокс с хол, спалня, баня с тоалетна, тераса.
СЪСТОЯНИЕ: Жилището се предлага на шпакловка и замазка, което дава възможност на новите собственици да създадат своя нов Дом, придавайки му индивидуалност и стил, чрез собствен почерк.
Заповядайте да Ви го покажем. Използвайки нашите услуги Вие ще превърнете закупуването на новия си дом в едно приятно изживяване, ще получите персонален консултант, съдействие при кандидатстване за кредит от всички банки в България, интериорни дизайнери и екип, който да се погрижи за нужните документи по Вашата сделка. На Ваше разположение сме всеки ден, от понеделник до неделя от 09:00 до 20:00ч. Възползвайте се от безплатна консултация в наш офис, където ще ви спестим време и ще ви запознаем с всички актуални имоти в България, отговарящи на Вашето търсене. Свържете се с нас на 08******90 или на 08******90 и цитирайте кода към имота: 96030
МЕСТОПОЛОЖЕНИЕ: Южен е един от най-бързо развиващите се и удобни квартали на Пловдив, предлагащ отлична инфраструктура, ново строителство и множество магазини, супермаркети и услуги. Районът е добре свързан с центъра чрез удобен транспорт и ключови булеварди, което осигурява лесно придвижване. Спокойната среда, зелените площи и близостта до училища и детски градини го правят предпочитан за семейства и млади хора.
РАЗПРЕДЕЛЕНИЕ: Разполага с площ от 65 кв.м., разгърната в следното функционално разпределение: кухненски бокс с хол, спалня, баня с тоалетна, тераса.
СЪСТОЯНИЕ: Жилището се предлага на шпакловка и замазка, което дава възможност на новите собственици да създадат своя нов Дом, придавайки му индивидуалност и стил, чрез собствен почерк.
Заповядайте да Ви го покажем. Използвайки нашите услуги Вие ще превърнете закупуването на новия си дом в едно приятно изживяване, ще получите персонален консултант, съдействие при кандидатстване за кредит от всички банки в България, интериорни дизайнери и екип, който да се погрижи за нужните документи по Вашата сделка. На Ваше разположение сме всеки ден, от понеделник до неделя от 09:00 до 20:00ч. Възползвайте се от безплатна консултация в наш офис, където ще ви спестим време и ще ви запознаем с всички актуални имоти в България, отговарящи на Вашето търсене. Свържете се с нас на 08******90 или на 08******90 и цитирайте кода към имота: 96030
ID: 146312321
Контакт с продавача
xxx xxx xxx
