Бизнес
Цена на кв.м: 1220.78
Тип апартамент: 2 - стаен
Квадратура: 77 кв.м
Година на строителство: 2026 г.
Строителство: Тухла
Етаж: Партер
Брой етажи на сградата: 8
Последен етаж
Отопление: Електричество
Обзавеждане: Необзаведен
Състояние на сградата: В строеж
Преход: Без преход
Особености: асансьор, саниран
Описание
Компания `ЕКС НВД` представя на Вашето внимание двустаен апартамент разположен в един от най-спокойните райони на град Варна - Владислав Варненчик.
МЕСТОПОЛОЖЕНИЕ: В близост до морето, спирка на градски транспорт, университети, училища, детски градини, парк, магазини от всякакъв тип.
СТРОИТЕЛСТВО: Апартаментът е ситуиран на партерен етаж в новострояща се кооперация.
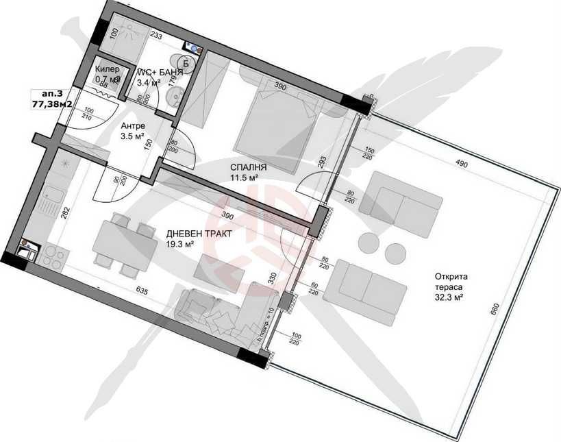
РАЗПРЕДЕЛЕНИЕ: Жилището разполага с площ от 77 кв.м., разпределена във входно антре, дневен тракт с кухненски бокс, спалня и баня с тоалетна.
СЪСТОЯНИЕ: Строежа е на етап АКТ 14. Имота бъде издаден по БДС, като има възможност за завършване до ключ. Очаква се сградата да вземе акт 16 до края на 2026 година.
ОСОБЕНОСТИ: Към апартамента може да се закупи паркомясто, като щената ще претърпи корекция.
Заповядайте да Ви го покажем. Използвайки нашите услуги Вие ще превърнете закупуването на новия си дом в едно приятно изживяване, ще получите персонален консултант, съдействие при кандидатстване за кредит от всички банки в България, интериорни дизайнери и екип, който да се погрижи за нужните документи по Вашата сделка. На Ваше разположение сме всеки ден, от понеделник до неделя от 09:00 до 20:00ч. Възползвайте се от безплатна консултация в наш офис, където ще ви спестим време и ще ви запознаем с всички актуални имоти в България, отговарящи на Вашето търсене. Свържете се с нас на 08******90 или на 08******11 и цитирайте кода към имота: 98884.
МЕСТОПОЛОЖЕНИЕ: В близост до морето, спирка на градски транспорт, университети, училища, детски градини, парк, магазини от всякакъв тип.
СТРОИТЕЛСТВО: Апартаментът е ситуиран на партерен етаж в новострояща се кооперация.
РАЗПРЕДЕЛЕНИЕ: Жилището разполага с площ от 77 кв.м., разпределена във входно антре, дневен тракт с кухненски бокс, спалня и баня с тоалетна.
СЪСТОЯНИЕ: Строежа е на етап АКТ 14. Имота бъде издаден по БДС, като има възможност за завършване до ключ. Очаква се сградата да вземе акт 16 до края на 2026 година.
ОСОБЕНОСТИ: Към апартамента може да се закупи паркомясто, като щената ще претърпи корекция.
Заповядайте да Ви го покажем. Използвайки нашите услуги Вие ще превърнете закупуването на новия си дом в едно приятно изживяване, ще получите персонален консултант, съдействие при кандидатстване за кредит от всички банки в България, интериорни дизайнери и екип, който да се погрижи за нужните документи по Вашата сделка. На Ваше разположение сме всеки ден, от понеделник до неделя от 09:00 до 20:00ч. Възползвайте се от безплатна консултация в наш офис, където ще ви спестим време и ще ви запознаем с всички актуални имоти в България, отговарящи на Вашето търсене. Свържете се с нас на 08******90 или на 08******11 и цитирайте кода към имота: 98884.
ID: 147318649
Контакт с продавача
xxx xxx xxx
