Бизнес
Цена на кв.м: 2310.51
Тип апартамент: 2 - стаен
Квадратура: 70 кв.м
Година на строителство: 2027 г.
Строителство: Тухла
Етаж: 5-ти
Брой етажи на сградата: 5
Последен етаж
Отопление: Електричество
Обзавеждане: Необзаведен
Състояние на сградата: В строеж
Преход: Без преход
Особености: асансьор, саниран, затворен комплекс
Описание
Революшън Естейт Ви представя двустаен апартамент в затворен комплекс с АКТ 14 в ж.к. Малинова долина.
Локация: бул. Климент Охридски на границата с Националната спортна академия и Студентски град.
Имотът е разположен на 5-ти жилищен етаж от общо 5.
Площ РЗП 70.32 кв.м. // ЗП 58.25 кв.м.
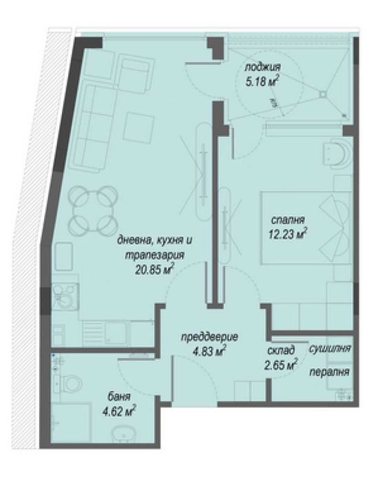
Разпределение: Входно антре, всекидневна с кухненски бокс и трапезария, спалня, баня с тоалетна, склад и лоджия.
Степен на завършеност:
Етап 1: АКТ 14, завършване до края на 2026 г.
Етап 2: В строеж, завършване до края на 2027 г.
Етап 3: В строеж, завършване до края на 2027 г.
Схема на плащане: 30% при подписване на Предварителен договор. 30% при АКТ 14. 30% при АКТ 15 и 10% при АКТ 16.
За повече информация не се колебайте да се свържете с нас и да цитирате референтен номер: 11736 в сграда с ID: 951.
Локация: бул. Климент Охридски на границата с Националната спортна академия и Студентски град.
Имотът е разположен на 5-ти жилищен етаж от общо 5.
Площ РЗП 70.32 кв.м. // ЗП 58.25 кв.м.
Разпределение: Входно антре, всекидневна с кухненски бокс и трапезария, спалня, баня с тоалетна, склад и лоджия.
Степен на завършеност:
Етап 1: АКТ 14, завършване до края на 2026 г.
Етап 2: В строеж, завършване до края на 2027 г.
Етап 3: В строеж, завършване до края на 2027 г.
Схема на плащане: 30% при подписване на Предварителен договор. 30% при АКТ 14. 30% при АКТ 15 и 10% при АКТ 16.
За повече информация не се колебайте да се свържете с нас и да цитирате референтен номер: 11736 в сграда с ID: 951.
ID: 145102607
Контакт с продавача
xxx xxx xxx
