Бизнес
Цена на кв.м: 1194.12
Тип апартамент: 2 - стаен
Квадратура: 68 кв.м
Година на строителство: 2025 г.
Строителство: Тухла
Етаж: 2-ри
Брой етажи на сградата: 5
Последен етаж
Отопление: Електричество
Обзавеждане: Необзаведен
Състояние на сградата: В строеж
Преход: Без преход
Описание
Компания Х представя на Вашето внимание двустаен апартамент в Созопол.
МЕСТОПОЛОЖЕНИЕ: Намира се в спокойна част на района, недалеч от хранителен магазин, както и на пешеходно разстояние от морето.
СТРОИТЕЛСТВО: Апартаментът е разположен на втори етаж, тухла.
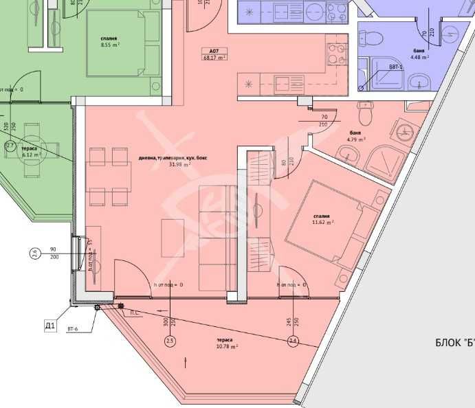
РАЗПРЕДЕЛЕНИЕ: Имотът разполага с площ 68кв.м., състои се от хол с кухненски бокс, спялня, баня с тоалетна и тераса.
СЪСТОЯНИЕ: В момента сградата се строи и ще бъде готова през 2025 година, а апартаментът ще се предаде на новия му собственик на степен до ключ!
Заповядайте да Ви го покажем. Използвайки нашите услуги Вие ще превърнете закупуването на новия си дом в едно приятно изживяване, ще получите персонален консултант, съдействие при кандидатстване за кредит от всички банки в България, интериорни дизайнери и екип, който да се погрижи за нужните документи по Вашата сделка. На Ваше разположение сме всеки ден, от понеделник до неделя от 09:00 до 20:00ч. Възползвайте се от безплатна консултация в наш офис, където ще ви спестим време и ще ви запознаем с всички актуални имоти в България, отговарящи на Вашето търсене. Свържете се с нас и цитирайте кода към имота: 64152
МЕСТОПОЛОЖЕНИЕ: Намира се в спокойна част на района, недалеч от хранителен магазин, както и на пешеходно разстояние от морето.
СТРОИТЕЛСТВО: Апартаментът е разположен на втори етаж, тухла.
РАЗПРЕДЕЛЕНИЕ: Имотът разполага с площ 68кв.м., състои се от хол с кухненски бокс, спялня, баня с тоалетна и тераса.
СЪСТОЯНИЕ: В момента сградата се строи и ще бъде готова през 2025 година, а апартаментът ще се предаде на новия му собственик на степен до ключ!
Заповядайте да Ви го покажем. Използвайки нашите услуги Вие ще превърнете закупуването на новия си дом в едно приятно изживяване, ще получите персонален консултант, съдействие при кандидатстване за кредит от всички банки в България, интериорни дизайнери и екип, който да се погрижи за нужните документи по Вашата сделка. На Ваше разположение сме всеки ден, от понеделник до неделя от 09:00 до 20:00ч. Възползвайте се от безплатна консултация в наш офис, където ще ви спестим време и ще ви запознаем с всички актуални имоти в България, отговарящи на Вашето търсене. Свържете се с нас и цитирайте кода към имота: 64152
ID: 140630459
Контакт с продавача
xxx xxx xxx
