Бизнес
Цена на кв.м: 1100
Тип апартамент: 2 - стаен
Квадратура: 73 кв.м
Година на строителство: 2026 г.
Строителство: Тухла
Етаж: 3-ти
Брой етажи на сградата: 5
Последен етаж
Отопление: Електричество
Обзавеждане: Необзаведен
Състояние на сградата: В строеж
Преход: Без преход
Описание
Компания `Х` представя на Вашето внимание двустаен апартамент в Прослав!
МЕСТОПОЛОЖЕНИЕ: Прослав – спокоен и бързоразвиващ се квартал в западната част на Пловдив. Предлага комбинация от тишина, зеленина и удобен достъп до центъра на града, което го прави предпочитано място за живеене и инвестиция. Характеризира се с ново строителство, добра инфраструктура и усещане за уют извън градския шум.
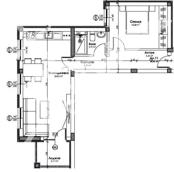
РАЗПРЕДЕЛЕНИЕ: Разполага с площ от 73 кв.м., със следното разпределение: коридор, спалня, баня с тоалетна и тераса.
СЪСТОЯНИЕ:Имотът е на етап „кота 0“ – с изпълнени основи и подготвен за следващия етап на строителство. Предоставя отлична възможност за довършване по индивидуален проект и предпочитания, с гъвкавост при разпределение и визия на бъдещата сграда.
Заповядайте да Ви го покажем. Използвайки нашите услуги Вие ще превърнете закупуването на новия си дом в едно приятно изживяване, ще получите персонален консултант, съдействие при кандидатстване за кредит от всички банки в България, интериорни дизайнери и екип, който да се погрижи за нужните документи по Вашата сделка. На Ваше разположение сме всеки ден, от понеделник до неделя от 09:00 до 20:00ч. Възползвайте се от безплатна консултация в наш офис, където ще ви спестим време и ще ви запознаем с всички актуални имоти в България, отговарящи на Вашето търсене. Свържете се с нас на 08******90 или на 08******90 и цитирайте кода към имота: 90282
МЕСТОПОЛОЖЕНИЕ: Прослав – спокоен и бързоразвиващ се квартал в западната част на Пловдив. Предлага комбинация от тишина, зеленина и удобен достъп до центъра на града, което го прави предпочитано място за живеене и инвестиция. Характеризира се с ново строителство, добра инфраструктура и усещане за уют извън градския шум.
РАЗПРЕДЕЛЕНИЕ: Разполага с площ от 73 кв.м., със следното разпределение: коридор, спалня, баня с тоалетна и тераса.
СЪСТОЯНИЕ:Имотът е на етап „кота 0“ – с изпълнени основи и подготвен за следващия етап на строителство. Предоставя отлична възможност за довършване по индивидуален проект и предпочитания, с гъвкавост при разпределение и визия на бъдещата сграда.
Заповядайте да Ви го покажем. Използвайки нашите услуги Вие ще превърнете закупуването на новия си дом в едно приятно изживяване, ще получите персонален консултант, съдействие при кандидатстване за кредит от всички банки в България, интериорни дизайнери и екип, който да се погрижи за нужните документи по Вашата сделка. На Ваше разположение сме всеки ден, от понеделник до неделя от 09:00 до 20:00ч. Възползвайте се от безплатна консултация в наш офис, където ще ви спестим време и ще ви запознаем с всички актуални имоти в България, отговарящи на Вашето търсене. Свържете се с нас на 08******90 или на 08******90 и цитирайте кода към имота: 90282
ID: 147821577
Контакт с продавача
xxx xxx xxx
