Бизнес
Цена на кв.м: 2853.62
Тип апартамент: 2 - стаен
Квадратура: 53 кв.м
Година на строителство: 2025 г.
Строителство: Тухла
Етаж: 3-ти
Брой етажи на сградата: 6
Последен етаж
Отопление: Електричество
Обзавеждане: Необзаведен
Състояние на сградата: В строеж
Преход: Без преход
Описание
Компания Х представя на Вашето внимание двустаен апартамент Поморие.
МЕСТОПОЛОЖЕНИЕ:.. Поморие предлага уникално съчетание от красиви плажове, минерални извори и исторически забележителности, което го прави привлекателно за туристи. Освен това, спокойната атмосфера и близостта до Бургас го правят лесно достъпно място за почивка.
СТРОИТЕЛСТВО: Апартаментът е разположен на трети етаж, тухла.
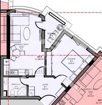
РАЗПРЕДЕЛЕНИЕ: Жилището разполага с площ 53,86 кв.м., състои се от хол с кухня, спалня, баня с тоалетнаи тераса.
СЪСТОЯНИЕ: Имотът се предлага както на тапа, така и на степен до ключ,
което Ви дава възможността да го усторите по Ваш вкус и да го превърнете
в мечтания дом!
Заповядайте да Ви го покажем. Използвайки нашите услуги Вие ще
превърнете закупуването на новия си дом в едно приятно изживяване, ще
получите персонален консултант, съдействие при кандидатстване за кредит
от всички банки в България, интериорни дизайнери и екип, който да се
погрижи за нужните документи по Вашата сделка. На Ваше разположение сме
всеки ден, от понеделник до неделя от 09:00 до 20:00ч. Възползвайте се
от безплатна консултация в наш офис, където ще ви спестим време и ще ви
запознаем с всички актуални имоти в България, отговарящи на Вашето
търсене. Свържете се с нас на 08******90 или на 08******83 и цитирайте
кода към имота: 777 - 23259
МЕСТОПОЛОЖЕНИЕ:.. Поморие предлага уникално съчетание от красиви плажове, минерални извори и исторически забележителности, което го прави привлекателно за туристи. Освен това, спокойната атмосфера и близостта до Бургас го правят лесно достъпно място за почивка.
СТРОИТЕЛСТВО: Апартаментът е разположен на трети етаж, тухла.
РАЗПРЕДЕЛЕНИЕ: Жилището разполага с площ 53,86 кв.м., състои се от хол с кухня, спалня, баня с тоалетнаи тераса.
СЪСТОЯНИЕ: Имотът се предлага както на тапа, така и на степен до ключ,
което Ви дава възможността да го усторите по Ваш вкус и да го превърнете
в мечтания дом!
Заповядайте да Ви го покажем. Използвайки нашите услуги Вие ще
превърнете закупуването на новия си дом в едно приятно изживяване, ще
получите персонален консултант, съдействие при кандидатстване за кредит
от всички банки в България, интериорни дизайнери и екип, който да се
погрижи за нужните документи по Вашата сделка. На Ваше разположение сме
всеки ден, от понеделник до неделя от 09:00 до 20:00ч. Възползвайте се
от безплатна консултация в наш офис, където ще ви спестим време и ще ви
запознаем с всички актуални имоти в България, отговарящи на Вашето
търсене. Свържете се с нас на 08******90 или на 08******83 и цитирайте
кода към имота: 777 - 23259
ID: 142815858
Контакт с продавача
xxx xxx xxx
