Бизнес
Цена на кв.м: 4014.74
Тип апартамент: 2 - стаен
Квадратура: 76 кв.м
Година на строителство: 2025 г.
Строителство: Тухла
Етаж: 3-ти
Брой етажи на сградата: 7
Последен етаж
Отопление: Електричество
Обзавеждане: Необзаведен
Състояние на сградата: В строеж
Преход: Без преход
Особености: асансьор
Описание
Без комисиона от купувача!
Локация! Локация! Локация!
ERA Парадайс продава двустаен апартамент в новострояща се сграда в историческия център на град Варна, в непосредствена близост до площад Севастопол и Морската градина. Малка, бутикова сграда, с луксозно завършени общи части, в район с ограничено предлагане на имоти ново строителство. Сградата е планирана да бъде на 7 етажа, изпълнена изцяло с висококачествени материали и висок клас дограма, а прозорците ще бъдат тип френски, което гарантира осветеността и слънцегреенето в жилищата през целия ден. Стилна и луксозна сграда, включваща търговски обекти на партерното ниво, 13 апартамента (едностайни, двустайни и тристайни), паркоместа в подземен паркинг и във вътрешния двор на сградата.
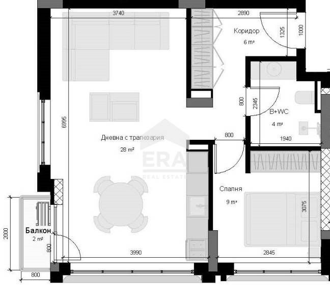
Апартаментът, който Ви предлагаме за продажба, е двустаен, с обща площ от 76.28 кв.м. (ЗП 58.65 кв.м.), разположен на трети етаж и фунционално е разпределен по следния начин: входно антре (6 кв.м.) с обособена ниша за вграден гардероб, дневен тракт с кухненски бокс и трапезария (28 кв.м.), с излаз на балкон (2 кв.м.), спалня (9 кв.м.) с обособена ниша за вграден гардероб, комбиниран санитарен възел ( 4 кв.м.). Изложението на жилището е югоизток. Жилището ще бъде издадено по БДС.
Локацията на имота е изключително привлекателна за лично ползване или за инвестиция с цел отдаване под наем - дългосрочно или краткосрочно за нощувки. Гарантирано добър доход и възвръщаемост на инвестицията.
В сградата има свободни още няколко апартамента, съответно с площ от 63.69 кв.м. до 147.11 кв.м., с една и две спални, както и партерни апартаменти със собствен двор, на цени от 254 760 евро. Възможност за закупуване на паркоместа на цени от 37800 евро.
Планиран срок за завършване на сградата и въвеждане в експлоатация: краят на 2026г.
Районът, в който е разположена сградата, е идеалният център на град Варна. Всичко е на пешеходно разстояние - Морската градина, пешеходната зона на бул. "Княз Борис I", заведения, магазини, ОУ "Кирил и Методий", СОУ "Св. Климент Охридски", ДГ № 7 "А. С. Пушкин", както и всички основни държавни и общински учреждения. В близост до спирки на градския транспорт.
Оферта №7100152
Локация! Локация! Локация!
ERA Парадайс продава двустаен апартамент в новострояща се сграда в историческия център на град Варна, в непосредствена близост до площад Севастопол и Морската градина. Малка, бутикова сграда, с луксозно завършени общи части, в район с ограничено предлагане на имоти ново строителство. Сградата е планирана да бъде на 7 етажа, изпълнена изцяло с висококачествени материали и висок клас дограма, а прозорците ще бъдат тип френски, което гарантира осветеността и слънцегреенето в жилищата през целия ден. Стилна и луксозна сграда, включваща търговски обекти на партерното ниво, 13 апартамента (едностайни, двустайни и тристайни), паркоместа в подземен паркинг и във вътрешния двор на сградата.
Апартаментът, който Ви предлагаме за продажба, е двустаен, с обща площ от 76.28 кв.м. (ЗП 58.65 кв.м.), разположен на трети етаж и фунционално е разпределен по следния начин: входно антре (6 кв.м.) с обособена ниша за вграден гардероб, дневен тракт с кухненски бокс и трапезария (28 кв.м.), с излаз на балкон (2 кв.м.), спалня (9 кв.м.) с обособена ниша за вграден гардероб, комбиниран санитарен възел ( 4 кв.м.). Изложението на жилището е югоизток. Жилището ще бъде издадено по БДС.
Локацията на имота е изключително привлекателна за лично ползване или за инвестиция с цел отдаване под наем - дългосрочно или краткосрочно за нощувки. Гарантирано добър доход и възвръщаемост на инвестицията.
В сградата има свободни още няколко апартамента, съответно с площ от 63.69 кв.м. до 147.11 кв.м., с една и две спални, както и партерни апартаменти със собствен двор, на цени от 254 760 евро. Възможност за закупуване на паркоместа на цени от 37800 евро.
Планиран срок за завършване на сградата и въвеждане в експлоатация: краят на 2026г.
Районът, в който е разположена сградата, е идеалният център на град Варна. Всичко е на пешеходно разстояние - Морската градина, пешеходната зона на бул. "Княз Борис I", заведения, магазини, ОУ "Кирил и Методий", СОУ "Св. Климент Охридски", ДГ № 7 "А. С. Пушкин", както и всички основни държавни и общински учреждения. В близост до спирки на градския транспорт.
Оферта №7100152
ID: 143001031
Контакт с продавача
xxx xxx xxx

