Бизнес
Цена на кв.м: 1505.26
Тип апартамент: 2 - стаен
Квадратура: 57 кв.м
Година на строителство: 2026 г.
Строителство: Тухла
Етаж: 3-ти
Брой етажи на сградата: 4
Отопление: Електричество
Обзавеждане: Необзаведен
Състояние на сградата: В строеж
Преход: Без преход
Особености: асансьор
Описание
ТОПИММО предлага за продажба двустаен тухлен апартамент в новострояща се сграда в местност “Пчелина”.
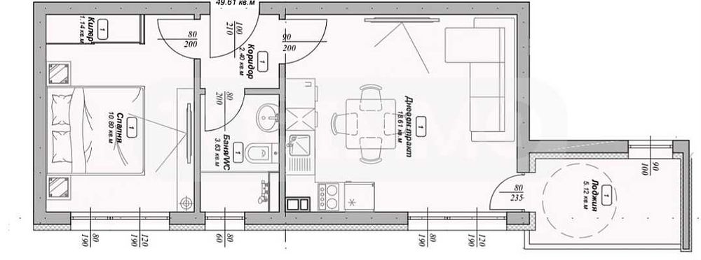
Имотът е разположен на трети етаж от четири със следното разпределение: антре, всекидневна с кухненска част с излаз на тераса, спалня, санитарен възел.
Имотът ще бъде издаден съгласно БДС стандарт.
Последни апартаменти в сградата. Разсрочена схема на плащане. Възможност за закупуване на паркомясто.
Можем да организираме оглед в удобно за вас време, свържете се с нас! Референтен номер: 4353
Имотът е разположен на трети етаж от четири със следното разпределение: антре, всекидневна с кухненска част с излаз на тераса, спалня, санитарен възел.
Имотът ще бъде издаден съгласно БДС стандарт.
Последни апартаменти в сградата. Разсрочена схема на плащане. Възможност за закупуване на паркомясто.
Можем да организираме оглед в удобно за вас време, свържете се с нас! Референтен номер: 4353
ID: 145559113
Контакт с продавача
xxx xxx xxx


