Бизнес
Цена на кв.м: 1513.89
Тип апартамент: 2 - стаен
Квадратура: 72 кв.м
Година на строителство: 2028 г.
Строителство: Тухла
Етаж: 3-ти
Брой етажи на сградата: 13
Последен етаж
Отопление: Електричество
Обзавеждане: Необзаведен
Състояние на сградата: В строеж
Преход: Без преход
Особености: асансьор
Описание
ТОПИММО предлага за продажба апартаменти в нов проект в квартал “Възраждане IV”. Строителната фирма е с дългогодишен опит в бранша, доказала се във времето с изключителна прецизност в изграждането на висококачествени сгради.
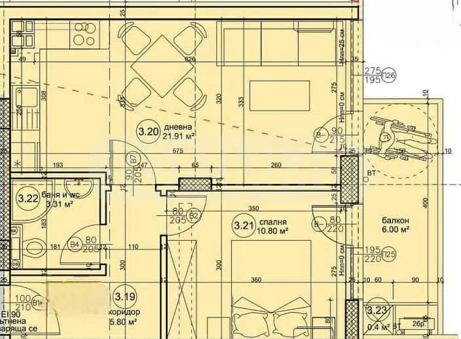
Имотът е тип “двустаен”, разположен на ет. 3 от 13, с източно изложение и следното разпределение: Г-образен коридор, всекидневна с кухн. част 22 кв.м. с излаз на балкон 6 кв.м., спалня 11 кв.м., санитарен възел.
Апартаментите се издават в състояние по БДС. С възможност за закупуване на подземни, надземни паркоместа и гаражи. Гъвкави схеми на плащане.
Имотът е подходящ както за лично ползване, така и с цел инвестиция, поради все по-често предпочитаната локация, в близост до “Парк Възраждане” и множество търговски обекти от всякакъв вид.
Можем да организираме оглед в удобно за вас време, свържете се с нас! Референтен номер: PL-4372
Имотът е тип “двустаен”, разположен на ет. 3 от 13, с източно изложение и следното разпределение: Г-образен коридор, всекидневна с кухн. част 22 кв.м. с излаз на балкон 6 кв.м., спалня 11 кв.м., санитарен възел.
Апартаментите се издават в състояние по БДС. С възможност за закупуване на подземни, надземни паркоместа и гаражи. Гъвкави схеми на плащане.
Имотът е подходящ както за лично ползване, така и с цел инвестиция, поради все по-често предпочитаната локация, в близост до “Парк Възраждане” и множество търговски обекти от всякакъв вид.
Можем да организираме оглед в удобно за вас време, свържете се с нас! Референтен номер: PL-4372
ID: 145593320
Контакт с продавача
xxx xxx xxx
Добавена 03 декември 2025 г.
Двустаен апартамент в нова сграда в кв. Възраждане 4
213185.47 лв. / 109000 €
Потребител
Локация
гр. Варна, Възраждане 4
Област Варна
За този потребител
