Бизнес
Цена на кв.м: 1411.76
Тип апартамент: 2 - стаен
Квадратура: 68 кв.м
Година на строителство: 2028 г.
Строителство: Тухла
Етаж: 2-ри
Брой етажи на сградата: 13
Последен етаж
Отопление: Електричество
Обзавеждане: Необзаведен
Състояние на сградата: В строеж
Преход: Без преход
Особености: асансьор
Описание
ТОПИММО предлага за продажба апартаменти в нов проект в квартал “Възраждане IV”. Строителната фирма е с дългогодишен опит в бранша, доказала се във времето с изключителна прецизност в изграждането на висококачествени сгради.
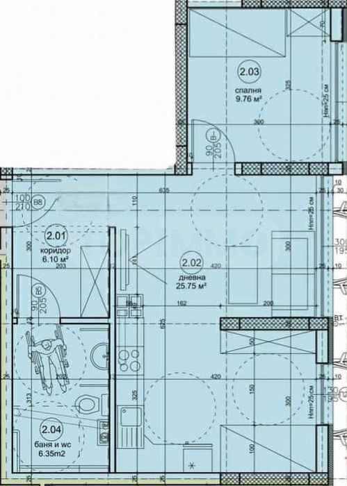
Имотът е тип “двустаен”, разположен на ет. 2 от 13, с източно изложение и следното разпределение: антре, всекидневна с кухн. част 25.75 кв.м., спалня 9.8 кв.м., санитарен възел.
Апартаментите се издават в състояние по БДС. С възможност за закупуване на подземни, надземни паркоместа и гаражи. Гъвкави схеми на плащане.
Имотът е подходящ както за лично ползване, така и с цел инвестиция, поради все по-често предпочитаната локация, в близост до “Парк Възраждане” и множество търговски обекти от всякакъв вид.
Можем да организираме оглед в удобно за вас време, свържете се с нас! Референтен номер: PL-4371
Имотът е тип “двустаен”, разположен на ет. 2 от 13, с източно изложение и следното разпределение: антре, всекидневна с кухн. част 25.75 кв.м., спалня 9.8 кв.м., санитарен възел.
Апартаментите се издават в състояние по БДС. С възможност за закупуване на подземни, надземни паркоместа и гаражи. Гъвкави схеми на плащане.
Имотът е подходящ както за лично ползване, така и с цел инвестиция, поради все по-често предпочитаната локация, в близост до “Парк Възраждане” и множество търговски обекти от всякакъв вид.
Можем да организираме оглед в удобно за вас време, свържете се с нас! Референтен номер: PL-4371
ID: 145593265
Контакт с продавача
xxx xxx xxx


