Бизнес
Цена на кв.м: 1659.72
Тип апартамент: 2 - стаен
Квадратура: 72 кв.м
Година на строителство: 2025 г.
Строителство: Тухла
Етаж: 5-ти
Брой етажи на сградата: 18
Последен етаж
Отопление: Електричество
Обзавеждане: Необзаведен
Състояние на сградата: В строеж
Преход: Без преход
Особености: асансьор
Описание
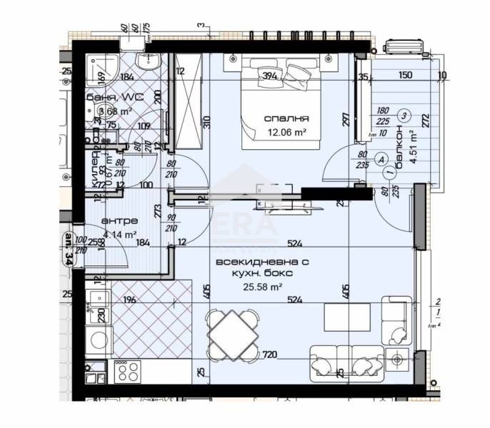
ЕРА Лайф обявява за продажба двустаен апартамент с площ 72,18 м2, разположен на пети жилищен етаж от осемнадесет в сграда, която се строи под стадион "Младост" във варненския квартал Младост II. Имотът се състои от: входно антре (4,14) м2, спалня (12,06) м2, дневен тракт с кухненски бокс (25,58) м2, килер (0,67) м2, комбиниран санитарен възел (3.68) м2, излаз на балкон (4,51) м2 от двете стаи. Статут на имота: апартамент. Изложение изток. Към апартамента може да се закупят допълнително две паркоместа /всяко на цена по 17 500Е/.
Жилището ще бъде завършено по БДС стандарт - коридор, кухня и стаи: под – циментова замазка, стени – бяла гипсова мазилка, таван – гипсова шпакловка;
Санитарен възел: стени и таван – мазилка, под – замазка, без санитарно обзавеждане;
Ел.инсталация: вътрешна и външна – 100% завършени (плюс електромер);
ВиК: – външна – 100% завършена с монтиран главен водомер, вътрешна – на тапа;
Външна врата: висок клас входна врата – блиндирана . Монтирани изводи за климатици във всички стаи.
Жилището е част от първия по рода си комплекс, състоящ се от 2 сгради. Комплексът ще разполага с парк за отдих и разходка, хранителен магазин и просторни търговски площи за бизнес. Уникална сграда, с панорамен изглед към целия град. Общи части: луксозно завършени 100%. Етап на строежа: пред първа плоча. Очакван срок на завършване 2028г.
Комплексът се намира в предпочитаният за живеене от много варненци квартал Младост. Районът предлага множество удобства, като хипермаркет, търговски центрове, училища, детски градини, поликлиника и развита транспортна инфраструктура. Код: 0708679
Към офертата са приложени илюстративни снимки с идеи за обзавеждане!
Оферта №0708679
Жилището ще бъде завършено по БДС стандарт - коридор, кухня и стаи: под – циментова замазка, стени – бяла гипсова мазилка, таван – гипсова шпакловка;
Санитарен възел: стени и таван – мазилка, под – замазка, без санитарно обзавеждане;
Ел.инсталация: вътрешна и външна – 100% завършени (плюс електромер);
ВиК: – външна – 100% завършена с монтиран главен водомер, вътрешна – на тапа;
Външна врата: висок клас входна врата – блиндирана . Монтирани изводи за климатици във всички стаи.
Жилището е част от първия по рода си комплекс, състоящ се от 2 сгради. Комплексът ще разполага с парк за отдих и разходка, хранителен магазин и просторни търговски площи за бизнес. Уникална сграда, с панорамен изглед към целия град. Общи части: луксозно завършени 100%. Етап на строежа: пред първа плоча. Очакван срок на завършване 2028г.
Комплексът се намира в предпочитаният за живеене от много варненци квартал Младост. Районът предлага множество удобства, като хипермаркет, търговски центрове, училища, детски градини, поликлиника и развита транспортна инфраструктура. Код: 0708679
Към офертата са приложени илюстративни снимки с идеи за обзавеждане!
Оферта №0708679
ID: 144986499
Контакт с продавача
xxx xxx xxx

