Бизнес
Цена на кв.м: 1257.38
Тип апартамент: 2 - стаен
Квадратура: 66 кв.м
Година на строителство: 2027 г.
Строителство: Тухла
Етаж: 5-ти
Брой етажи на сградата: 5
Последен етаж
Отопление: Електричество
Обзавеждане: Необзаведен
Състояние на сградата: В строеж
Преход: Без преход
Описание
Компания X представя на Вашето внимание двустаен апартамент в кв. Западен!
МЕСТОПОЛОЖЕНИЕ: Район Западен се намира в западната част на Пловдив, в близост до Гребната база, парк Отдих и култура и МОЛ Пловдив. Тих и зелен район с добра инфраструктура, удобен градски транспорт и лесен достъп до центъра. Подходящ за семейства и активен начин на живот.
СТРОИТЕЛСТВО: Апартаментът се намира на 2-ри етаж, в сграда ново строителство.
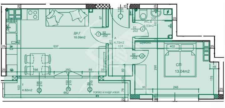
РАЗПРЕДЕЛЕНИЕ: Жилището разполага с площ от 66.39 кв.м., разпределена във входно антре,
дневна с кухненски бокс и трапезария; спалня; баня с тоалетна и тераса.
СЪСТОЯНИЕ: В строеж.
Заповядайте да Ви го покажем. Използвайки нашите услуги Вие ще превърнете закупуването на новия си дом в едно приятно изживяване, ще получите персонален консултант, съдействие при кандидатстване за кредит от всички банки в България, интериорни дизайнери и екип, който да се погрижи за нужните документи по Вашата сделка. На Ваше разположение сме всеки ден, от понеделник до неделя от 09:00 до 20:00ч. Възползвайте се от безплатна консултация в наш офис, където ще ви спестим време и ще ви запознаем с всички актуални имоти в България, отговарящи на Вашето търсене. Свържете се с нас и цитирайте кода към имота: 1146-33851
МЕСТОПОЛОЖЕНИЕ: Район Западен се намира в западната част на Пловдив, в близост до Гребната база, парк Отдих и култура и МОЛ Пловдив. Тих и зелен район с добра инфраструктура, удобен градски транспорт и лесен достъп до центъра. Подходящ за семейства и активен начин на живот.
СТРОИТЕЛСТВО: Апартаментът се намира на 2-ри етаж, в сграда ново строителство.
РАЗПРЕДЕЛЕНИЕ: Жилището разполага с площ от 66.39 кв.м., разпределена във входно антре,
дневна с кухненски бокс и трапезария; спалня; баня с тоалетна и тераса.
СЪСТОЯНИЕ: В строеж.
Заповядайте да Ви го покажем. Използвайки нашите услуги Вие ще превърнете закупуването на новия си дом в едно приятно изживяване, ще получите персонален консултант, съдействие при кандидатстване за кредит от всички банки в България, интериорни дизайнери и екип, който да се погрижи за нужните документи по Вашата сделка. На Ваше разположение сме всеки ден, от понеделник до неделя от 09:00 до 20:00ч. Възползвайте се от безплатна консултация в наш офис, където ще ви спестим време и ще ви запознаем с всички актуални имоти в България, отговарящи на Вашето търсене. Свържете се с нас и цитирайте кода към имота: 1146-33851
ID: 145588662
Контакт с продавача
xxx xxx xxx