Бизнес
Цена на кв.м: 1308.73
Тип апартамент: 2 - стаен
Квадратура: 70 кв.м
Година на строителство: 2025 г.
Строителство: Тухла
Етаж: 3-ти
Брой етажи на сградата: 5
Последен етаж
Отопление: Електричество
Обзавеждане: Необзаведен
Състояние на сградата: В строеж
Преход: Без преход
OLX Доставка
Описание
Компания „Х“ представя на Вашето внимание двуистаен апартамент в кв.Остромила.
МЕСТОПОЛОЖЕНИЕ: Кварталът разполага с добре развита инфраструктура,обществен транспорт, магазини, училища, детски градини и други удобства.В околността на квартала се намират няколко парка и зелени площи, които предлагат възможности за отдих и разходки на открито.Кварталът е подходящ за семейства с деца, като предлага спокойна и сигурна обстановка за живеене.
СТРОИТЕЛСТВО: Разположен на 3-ти етаж в сграда ново строителство.
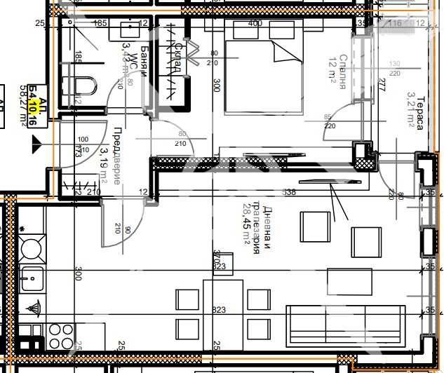
РАЗПРЕДЕЛЕНИЕ: Жилището разполага с площ от 70 кв.м., състои се от предверие, всекидневна с кухненски бокс и трапезария, спалня, баня с тоалетна, склад и тераса.
СЪСТОЯНИЕ: С акт 14!
Заповядайте да Ви го покажем. Използвайки нашите услуги Вие ще превърнете закупуването на новия си дом в едно приятно изживяване, ще получите персонален консултант, съдействие при кандидатстване за кредит от всички банки в България, интериорни дизайнери и екип, който да се погрижи за нужните документи по Вашата сделка. На Ваше разположение сме всеки ден, от понеделник до неделя от 09:00 до 20:00ч. Възползвайте се от безплатна консултация в наш офис, където ще ви спестим време и ще ви запознаем с всички актуални имоти в България, отговарящи на Вашето търсене. Свържете се с нас на 088777990 или на 08******90 и цитирайте кода към имота: 993-29181
МЕСТОПОЛОЖЕНИЕ: Кварталът разполага с добре развита инфраструктура,обществен транспорт, магазини, училища, детски градини и други удобства.В околността на квартала се намират няколко парка и зелени площи, които предлагат възможности за отдих и разходки на открито.Кварталът е подходящ за семейства с деца, като предлага спокойна и сигурна обстановка за живеене.
СТРОИТЕЛСТВО: Разположен на 3-ти етаж в сграда ново строителство.
РАЗПРЕДЕЛЕНИЕ: Жилището разполага с площ от 70 кв.м., състои се от предверие, всекидневна с кухненски бокс и трапезария, спалня, баня с тоалетна, склад и тераса.
СЪСТОЯНИЕ: С акт 14!
Заповядайте да Ви го покажем. Използвайки нашите услуги Вие ще превърнете закупуването на новия си дом в едно приятно изживяване, ще получите персонален консултант, съдействие при кандидатстване за кредит от всички банки в България, интериорни дизайнери и екип, който да се погрижи за нужните документи по Вашата сделка. На Ваше разположение сме всеки ден, от понеделник до неделя от 09:00 до 20:00ч. Възползвайте се от безплатна консултация в наш офис, където ще ви спестим време и ще ви запознаем с всички актуални имоти в България, отговарящи на Вашето търсене. Свържете се с нас на 088777990 или на 08******90 и цитирайте кода към имота: 993-29181
ID: 142706136
Контакт с продавача
xxx xxx xxx
