Бизнес
Цена на кв.м: 2230.77
Тип апартамент: 2 - стаен
Квадратура: 65 кв.м
Година на строителство: 2025 г.
Строителство: Тухла
Етаж: 3-ти
Брой етажи на сградата: 6
Последен етаж
Отопление: Електричество
Обзавеждане: Необзаведен
Състояние на сградата: Завършена
Преход: Без преход
Описание
АКТ 16 ДО КРАЯ НА 2025 Г.!
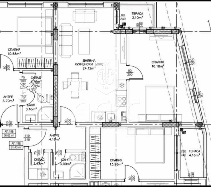
Предлагаме за продажба двустаен апартамент в тухлена сграда, разположена на 3-ти етаж от общо 6.
Жилището се издава на шпакловка и замазка, което позволява на бъдещия собственик да го завърши и обзаведе по свой вкус.
Разпределение:
входно антре/коридор
складово помещение
баня с тоалетна
просторна дневна с кухненски бокс
спалня
тераса
Характеристики на сградата:
тухлено строителство с високо качество
модерна архитектура и функционални апартаменти
асансьор и добре поддържани общи части
Локация:
Имотът се намира на комуникативно място, в близост до магазини, аптеки, големи пътни артерии, търговски центрове и паркове, което го прави подходящ както за собствено ползване, така и за инвестиция.
За повече информация и за организиране на оглед, не се колебайте да се свържете с нас. Ще се радваме да ви предоставим всички детайли и да уговорим удобен час за посещение на имота!
Отговорен брокер- Петър Матеев
08******46
Предлагаме за продажба двустаен апартамент в тухлена сграда, разположена на 3-ти етаж от общо 6.
Жилището се издава на шпакловка и замазка, което позволява на бъдещия собственик да го завърши и обзаведе по свой вкус.
Разпределение:
входно антре/коридор
складово помещение
баня с тоалетна
просторна дневна с кухненски бокс
спалня
тераса
Характеристики на сградата:
тухлено строителство с високо качество
модерна архитектура и функционални апартаменти
асансьор и добре поддържани общи части
Локация:
Имотът се намира на комуникативно място, в близост до магазини, аптеки, големи пътни артерии, търговски центрове и паркове, което го прави подходящ както за собствено ползване, така и за инвестиция.
За повече информация и за организиране на оглед, не се колебайте да се свържете с нас. Ще се радваме да ви предоставим всички детайли и да уговорим удобен час за посещение на имота!
Отговорен брокер- Петър Матеев
08******46
ID: 146310927
Контакт с продавача
xxx xxx xxx
Добавена 24 декември 2025 г.
Двустаен апартамент в кв. Малинова Долина
283595.35 лв. / 145000 €
Потребител
Локация
гр. София, Малинова долина
Област София-град
За този потребител