Бизнес
Цена на кв.м: 4277.78
Тип апартамент: 2 - стаен
Квадратура: 99 кв.м
Година на строителство: 2025 г.
Строителство: Тухла
Етаж: 9-ти
Брой етажи на сградата: 11
Последен етаж
Отопление: Електричество
Обзавеждане: Необзаведен
Състояние на сградата: Завършена
Преход: Без преход
Особености: асансьор, гараж, паркинг, видеонаблюдение
Описание
Компания `ЕКС` представя на Вашето внимание двустаен апартамент в кв. Хладилника.
МЕСТОПОЛОЖЕНИЕ: Намира се на 300 метра от метростанция Витоша и МОЛ Парадайз , в непосредствена близост до реномирани здравни и учебни заведения, район с особено богато търговско обслужване и удобни транспортни връзки.
СТРОИТЕЛСТВО: Апартаментът е ситуиран на 9-ти жилищен етаж в сграда ново строителство с Акт 16.
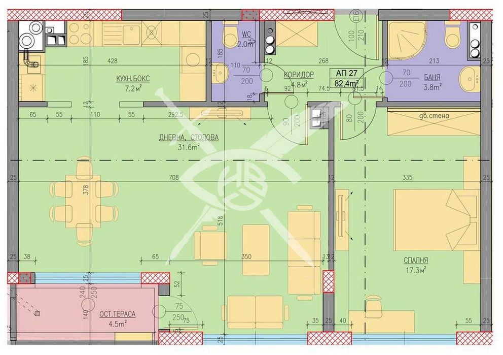
РАЗПРЕДЕЛЕНИЕ: Жилището разполага с чиста жилищна площ от 99 кв.м. разпределена във входно антре, просторен хол с трапезария, кухня, спалня, баня с тоалетна, отделна тоалетна и огромна тераса.
ОСОБЕНОСТИ: Към апартамента може да се закупи гараж.
Заповядайте да Ви го покажем. Използвайки нашите услуги Вие ще превърнете закупуването на новия си дом в едно приятно изживяване, ще получите персонален консултант, съдействие при кандидатстване за кредит от всички банки в България, интериорни дизайнери и екип, който да се погрижи за нужните документи по Вашата сделка. На Ваше разположение сме всеки ден, от понеделник до неделя от 09:00 до 20:00ч. Възползвайте се от безплатна консултация в наш офис, където ще ви спестим време и ще ви запознаем с всички актуални имоти в България, отговарящи на Вашето търсене. Свържете се с нас на 08*********90 или на 08*********57 и цитирайте кода към имота: 1397-39806.
МЕСТОПОЛОЖЕНИЕ: Намира се на 300 метра от метростанция Витоша и МОЛ Парадайз , в непосредствена близост до реномирани здравни и учебни заведения, район с особено богато търговско обслужване и удобни транспортни връзки.
СТРОИТЕЛСТВО: Апартаментът е ситуиран на 9-ти жилищен етаж в сграда ново строителство с Акт 16.
РАЗПРЕДЕЛЕНИЕ: Жилището разполага с чиста жилищна площ от 99 кв.м. разпределена във входно антре, просторен хол с трапезария, кухня, спалня, баня с тоалетна, отделна тоалетна и огромна тераса.
ОСОБЕНОСТИ: Към апартамента може да се закупи гараж.
Заповядайте да Ви го покажем. Използвайки нашите услуги Вие ще превърнете закупуването на новия си дом в едно приятно изживяване, ще получите персонален консултант, съдействие при кандидатстване за кредит от всички банки в България, интериорни дизайнери и екип, който да се погрижи за нужните документи по Вашата сделка. На Ваше разположение сме всеки ден, от понеделник до неделя от 09:00 до 20:00ч. Възползвайте се от безплатна консултация в наш офис, където ще ви спестим време и ще ви запознаем с всички актуални имоти в България, отговарящи на Вашето търсене. Свържете се с нас на 08*********90 или на 08*********57 и цитирайте кода към имота: 1397-39806.
ID: 147620083
Контакт с продавача
xxx xxx xxx
