Бизнес
Цена на кв.м: 1455.27
Тип апартамент: 2 - стаен
Квадратура: 66 кв.м
Година на строителство: 2028 г.
Строителство: Тухла
Етаж: Партер
Брой етажи на сградата: 6
Последен етаж
Отопление: Електричество
Обзавеждане: Необзаведен
Състояние на сградата: В строеж
Преход: Без преход
Особености: асансьор
Описание
Титан Пропъртис представя на Вашето внимание двустаен апартамент в кв.Коматево.
В близост са разположени търговски обекти, спирки на градски транспорт.
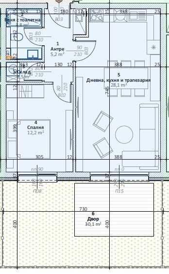
Апартаментът е ситуиран на партерен жилищен етаж и разполага с площ от 66кв.м., разгърната в следното практично разпределение: Входно антре, дневна с кухненски бокс, спалня, баня с тоалетна, склад, двор - 30,1 кв.м.
Отоплението е електричество.Сградата разполага с асансьор.
Жилището се продава на шпакловка и замазка за да може да се превърне във мечтания за Вас дом!
За оглед на това и други атрактивни предложения, не се колебайте да ни потърсите на посочения телефон или да ни изпратите данните си чрез формата за запитване на сайта.
Реф. номер: 1138
В близост са разположени търговски обекти, спирки на градски транспорт.
Апартаментът е ситуиран на партерен жилищен етаж и разполага с площ от 66кв.м., разгърната в следното практично разпределение: Входно антре, дневна с кухненски бокс, спалня, баня с тоалетна, склад, двор - 30,1 кв.м.
Отоплението е електричество.Сградата разполага с асансьор.
Жилището се продава на шпакловка и замазка за да може да се превърне във мечтания за Вас дом!
За оглед на това и други атрактивни предложения, не се колебайте да ни потърсите на посочения телефон или да ни изпратите данните си чрез формата за запитване на сайта.
Реф. номер: 1138
ID: 146060222
Контакт с продавача
xxx xxx xxx
