Бизнес
Цена на кв.м: 1062.50
Тип апартамент: 2 - стаен
Квадратура: 72 кв.м
Година на строителство: 2029 г.
Строителство: Тухла
Етаж: 2-ри
Брой етажи на сградата: 5
Последен етаж
Отопление: Електричество
Обзавеждане: Полуобзаведен
Състояние на сградата: В строеж
Преход: Без преход
Особености: асансьор, паркинг
Описание
Титан Пропъртис има удоволствието да Ви представи двустаен апартамент в малка бутикова сграда в кв. Прослав в начален етап на строеж, разположена в близост до основни пътни артерии, магазини, детска градина, училище и паркове.
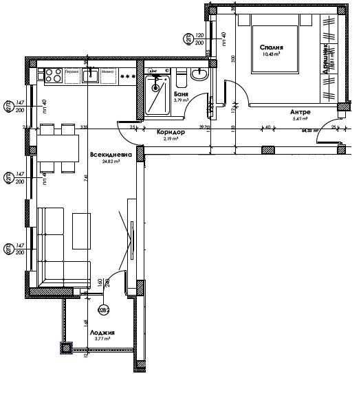
Апартаментът е ситуиран на 2-ри от 5-ти жилищен етаж и разполага с площ от 72 кв.м., разгърната по следния практичен начин: входно антре, хол с кухненски бокс, спалня, дрешник, баня с тоалетна, лоджия.
Има възможност за закупуване паркомясто на стойност 8 000 евро.
За оглед на това и други атрактивни предложения, не се колебайте да ни потърсите на посочения телефон или да ни изпратите данните си чрез формата за запитване на сайта.
Референтен номер: 1202
Апартаментът е ситуиран на 2-ри от 5-ти жилищен етаж и разполага с площ от 72 кв.м., разгърната по следния практичен начин: входно антре, хол с кухненски бокс, спалня, дрешник, баня с тоалетна, лоджия.
Има възможност за закупуване паркомясто на стойност 8 000 евро.
За оглед на това и други атрактивни предложения, не се колебайте да ни потърсите на посочения телефон или да ни изпратите данните си чрез формата за запитване на сайта.
Референтен номер: 1202
ID: 146955164
Контакт с продавача
xxx xxx xxx
