Бизнес
Цена на кв.м: 1846.21
Тип апартамент: 2 - стаен
Квадратура: 86 кв.м
Година на строителство: 2025 г.
Строителство: Тухла
Етаж: 5-ти
Брой етажи на сградата: 7
Последен етаж
Отопление: Електричество
Обзавеждане: Необзаведен
Състояние на сградата: В строеж
Преход: Без преход
Особености: асансьор
Описание
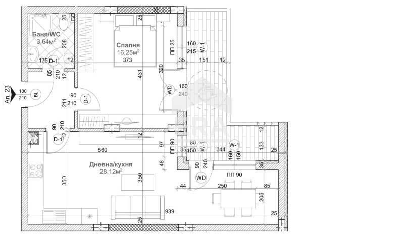
ЕРА Лайф обявява за продажба апартамент със застроена площ 70,77 кв.м. (обща площ 86,29 кв.м.), разположен на пети етаж от седем в новопостроена сграда. Имотът е със следното разпределение: антре, дневен тракт с кухненски бокс - 28,12 кв.м., спалня - 16,25кв.м. - тераса с излаз от дневната и спалня, тоалетна и комбиниран санитарен възел - 3,64 кв.м. Виж раздел "План" . Към имота има и паркомясто. Жилището е със статут на апартамент.
Апартаментът ще бъде завършен по БДС стандарт - на шпакловка и замазка. Апартаментът се продава без обзавеждане. Отоплението е на ток. Очакван срок на завършване декември 2026г.
Предлаганото жилище е част от луксозен жилищен комплекс в непосредствена близост до Университетска болница "Света Марина". Сградата е с иновативен, функционален и елегантен дизайн. Разположена в район с добър асфалтов достъп, тя предлага бърз и лесен достъп до основните градски артерии. При планирането на комплекса основно внимание е обърнато на удобството и безопасността на бъдещите жители. За сградата ще се използва стоманобетонова, гредова конструкция, укрепена с носещи колони, греди, шайби и здрави стоманобетонови плочи. Всеки елемент от проекта е избран с грижа за устойчивостта и дълготрайността на сградата, следвайки строгите национални стандарти. Код: 0708732
Оферта №0708732
Апартаментът ще бъде завършен по БДС стандарт - на шпакловка и замазка. Апартаментът се продава без обзавеждане. Отоплението е на ток. Очакван срок на завършване декември 2026г.
Предлаганото жилище е част от луксозен жилищен комплекс в непосредствена близост до Университетска болница "Света Марина". Сградата е с иновативен, функционален и елегантен дизайн. Разположена в район с добър асфалтов достъп, тя предлага бърз и лесен достъп до основните градски артерии. При планирането на комплекса основно внимание е обърнато на удобството и безопасността на бъдещите жители. За сградата ще се използва стоманобетонова, гредова конструкция, укрепена с носещи колони, греди, шайби и здрави стоманобетонови плочи. Всеки елемент от проекта е избран с грижа за устойчивостта и дълготрайността на сградата, следвайки строгите национални стандарти. Код: 0708732
Оферта №0708732
ID: 145218718
Контакт с продавача
xxx xxx xxx

