Бизнес
Цена на кв.м: 846.29
Тип апартамент: 2 - стаен
Квадратура: 76 кв.м
Година на строителство: 2024 г.
Строителство: Тухла
Етаж: 4-ти
Брой етажи на сградата: 5
Отопление: Електричество
Обзавеждане: Необзаведен
Състояние на сградата: В строеж
Преход: Без преход
Особености: асансьор
Описание
Компания Х представя на Вашето внимание двустаен апартамент в Асеновград .
МЕСТОПОЛОЖЕНИЕ: Намира се в град с изключителна историческа стойност и красива природа.
СТРОИТЕЛСТВО: Рзположен на 4-ти етаж в сграда с модерен дизайн, построена през 2024 година.
Апартаментът впечатлява със светлина и пространство с панорамни гледки към планината.
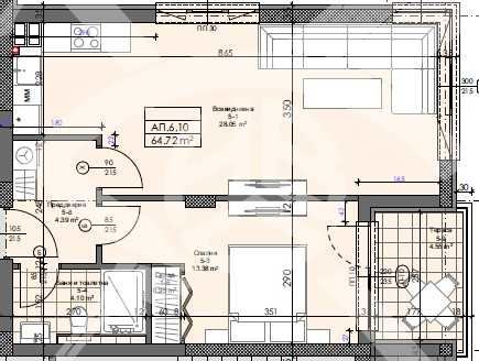
РАЗПРЕДЕЛЕНИЕ: Жилището разполага с площ от 76 кв.м., състои се от кухненски бокс с хол, спалня, баня с тоалетна, тераса и склад.
СЪСТОЯНИЕ: Жилището се предлага на шпакловка и замазка, което дава възможност на новите собственици да създадат своя нов ДОМ, придавайки му индивидуалност и стил. Заповядайте да Ви го покажем. Използвайки нашите услуги Вие ще превърнете закупуването на новия си дом в едно приятно изживяване, ще получите персонален консултант, съдействие при кандидатстване за кредит от всички банки в България, интериорни дизайнери и екип, който да се погрижи за нужните документи по Вашата сделка. На Ваше разположение сме всеки ден, от понеделник до неделя от 09:00 до 20:00ч. Възползвайте се от безплатна консултация в наш офис, където ще ви спестим време и ще ви запознаем с всички актуални имоти в България, отговарящи на Вашето търсене. Свържете се с нас на 088777990 или на 08******90 и цитирайте кода към имота:591-19361
МЕСТОПОЛОЖЕНИЕ: Намира се в град с изключителна историческа стойност и красива природа.
СТРОИТЕЛСТВО: Рзположен на 4-ти етаж в сграда с модерен дизайн, построена през 2024 година.
Апартаментът впечатлява със светлина и пространство с панорамни гледки към планината.
РАЗПРЕДЕЛЕНИЕ: Жилището разполага с площ от 76 кв.м., състои се от кухненски бокс с хол, спалня, баня с тоалетна, тераса и склад.
СЪСТОЯНИЕ: Жилището се предлага на шпакловка и замазка, което дава възможност на новите собственици да създадат своя нов ДОМ, придавайки му индивидуалност и стил. Заповядайте да Ви го покажем. Използвайки нашите услуги Вие ще превърнете закупуването на новия си дом в едно приятно изживяване, ще получите персонален консултант, съдействие при кандидатстване за кредит от всички банки в България, интериорни дизайнери и екип, който да се погрижи за нужните документи по Вашата сделка. На Ваше разположение сме всеки ден, от понеделник до неделя от 09:00 до 20:00ч. Възползвайте се от безплатна консултация в наш офис, където ще ви спестим време и ще ви запознаем с всички актуални имоти в България, отговарящи на Вашето търсене. Свържете се с нас на 088777990 или на 08******90 и цитирайте кода към имота:591-19361
ID: 140448044
Контакт с продавача
xxx xxx xxx
