Бизнес
Цена на кв.м: 1206.59
Тип апартамент: 2 - стаен
Квадратура: 91 кв.м
Година на строителство: 2025 г.
Строителство: Тухла
Етаж: 4-ти
Брой етажи на сградата: 5
Отопление: Електричество
Обзавеждане: Необзаведен
Състояние на сградата: В строеж
Преход: Без преход
Особености: асансьор
Описание
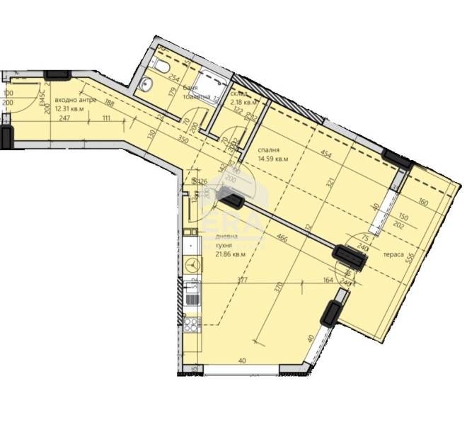
ЕРА Недвижими имоти – офис ЛИДЕР предлага за продажба просторен двустаен апартамент с площ 91,50 кв.м., разположен в сграда ново строителство с Акт 14 на бул. Неофит Бозвели, ж.к. Широк център.
Апартаментът се състои от дневна с кухня, спалня, складово помещение и баня със санитарен възел. Функционалното разпределение и светлите помещения осигуряват комфорт и удобство за ежедневието.
Към имота се предлага и паркомясто за цена от 25 000 евро – идеално за вашия автомобил в оживения център.
Сградата ще бъде изпълнена по най-високи съвременни стандарти, с модерна фасада, луксозно завършени общи части и енергийно ефективни решения, които гарантират дългосрочна стойност и комфорт. Проектът е изключително подходящ както за постоянно обитаване, така и като инвестиция с висока доходност, предвид отличното местоположение и нарастващото търсене в района.
Възползвайте се от безплатна консултация в нашия офис – ще ви спестим време и средства и ще ви запознаем с всички актуални оферти в Русе и региона, които отговарят на вашето търсене.
Обадете се още сега за оглед: 08********66
Всеки имот, предлаган от ЕРА, е проверен, посетен на място и заснет от наш консултант.
ЕРА е лицензиран кредитен посредник, регистриран към БНБ, и предлага безплатна консултация за всички видове кредити към всички банки.
Оферта №6700277
Апартаментът се състои от дневна с кухня, спалня, складово помещение и баня със санитарен възел. Функционалното разпределение и светлите помещения осигуряват комфорт и удобство за ежедневието.
Към имота се предлага и паркомясто за цена от 25 000 евро – идеално за вашия автомобил в оживения център.
Сградата ще бъде изпълнена по най-високи съвременни стандарти, с модерна фасада, луксозно завършени общи части и енергийно ефективни решения, които гарантират дългосрочна стойност и комфорт. Проектът е изключително подходящ както за постоянно обитаване, така и като инвестиция с висока доходност, предвид отличното местоположение и нарастващото търсене в района.
Възползвайте се от безплатна консултация в нашия офис – ще ви спестим време и средства и ще ви запознаем с всички актуални оферти в Русе и региона, които отговарят на вашето търсене.
Обадете се още сега за оглед: 08********66
Всеки имот, предлаган от ЕРА, е проверен, посетен на място и заснет от наш консултант.
ЕРА е лицензиран кредитен посредник, регистриран към БНБ, и предлага безплатна консултация за всички видове кредити към всички банки.
Оферта №6700277
ID: 146729462
Контакт с продавача
xxx xxx xxx
