Бизнес
Цена на кв.м: 1598.89
Тип апартамент: 2 - стаен
Квадратура: 72 кв.м
Година на строителство: 2028 г.
Строителство: Тухла
Етаж: 3-ти
Брой етажи на сградата: 6
Последен етаж
Отопление: Електричество
Обзавеждане: Необзаведен
Състояние на сградата: В строеж
Преход: Без преход
Особености: асансьор, гараж
Описание
Титан Пропъртис има удоволствието да Ви представи двустаен апартамент, в новострояща се жилищна сграда, съчетаваща бутиков стил и модерна архитектура с подземни гаражи в кв. Кючук Париж.
В близост са разположени търговски обекти, място за отдих, спирки на градски транспорт, община 'Южен'.
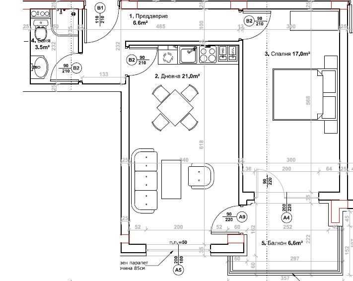
Имотът е ситуиран на 3-ти от 6-ти жилищен етаж и разполага собща площ от 72 кв.м., разгърната по следния практичен начин: Входно антре, дневна с кухненски бокс, спалня, баня с тоалетна и тераса. Сградата разполага с асансьор. Жилището се предлага на шпакловка и замазка!
За оглед на това и други атрактивни предложения, не се колебайте да ни потърсите на посочения телефон или да ни изпратите данните си чрез формата за запитване на сайта.
Референтен номер: 1216
В близост са разположени търговски обекти, място за отдих, спирки на градски транспорт, община 'Южен'.
Имотът е ситуиран на 3-ти от 6-ти жилищен етаж и разполага собща площ от 72 кв.м., разгърната по следния практичен начин: Входно антре, дневна с кухненски бокс, спалня, баня с тоалетна и тераса. Сградата разполага с асансьор. Жилището се предлага на шпакловка и замазка!
За оглед на това и други атрактивни предложения, не се колебайте да ни потърсите на посочения телефон или да ни изпратите данните си чрез формата за запитване на сайта.
Референтен номер: 1216
ID: 147147500
Контакт с продавача
xxx xxx xxx
