Бизнес
Цена на кв.м: 1387.32
Тип апартамент: 2 - стаен
Квадратура: 71 кв.м
Година на строителство: 2024 г.
Строителство: Тухла
Етаж: 4-ти
Брой етажи на сградата: 13
Последен етаж
Отопление: Електричество
Обзавеждане: Необзаведен
Състояние на сградата: В строеж
Преход: Без преход
Особености: асансьор
Описание
Компания X представя на Вашето внимание двустаен апартамент в кв.Кършияка.
МЕСТОПОЛОЖЕНИЕ: В квартала се намират много културни забележителности. Пловдивския римски стадион и различни музеи и галерии. Популярен е заради своята животъпроявеност - улични пазари, кафенета, ресторанти и местни събития, които привличат много посетители.
СТРОИТЕЛСТВО: Апартаментът се намира на 4 етаж , тухла.
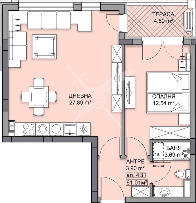
РАЗПРЕДЕЛЕНИЕ: Жилището разполага с площ от 71 кв.м. разпределена в дневна с трапезария и кухненски бокс, спалня , баня с тоалетна, тераса.
СЪСТОЯНИЕ: В строеж.
Заповядайте да Ви го покажем. Използвайки нашите услуги Вие ще превърнете закупуването на новия си дом в едно приятно изживяване, ще получите персонален консултант, съдействие при кандидатстване за кредит от всички банки в България, интериорни дизайнери и екип, който да се погрижи за нужните документи по Вашата сделка. На Ваше разположение сме всеки ден, от понеделник до неделя от 09:00 до 20:00ч. Възползвайте се от безплатна консултация в наш офис, където ще ви спестим време и ще ви запознаем с всички актуални имоти в България, отговарящи на Вашето търсене. Свържете се с нас на 08******90 /на цената на един градски разговор/ или на 08******90 и цитирайте кода към имота:521-18381
МЕСТОПОЛОЖЕНИЕ: В квартала се намират много културни забележителности. Пловдивския римски стадион и различни музеи и галерии. Популярен е заради своята животъпроявеност - улични пазари, кафенета, ресторанти и местни събития, които привличат много посетители.
СТРОИТЕЛСТВО: Апартаментът се намира на 4 етаж , тухла.
РАЗПРЕДЕЛЕНИЕ: Жилището разполага с площ от 71 кв.м. разпределена в дневна с трапезария и кухненски бокс, спалня , баня с тоалетна, тераса.
СЪСТОЯНИЕ: В строеж.
Заповядайте да Ви го покажем. Използвайки нашите услуги Вие ще превърнете закупуването на новия си дом в едно приятно изживяване, ще получите персонален консултант, съдействие при кандидатстване за кредит от всички банки в България, интериорни дизайнери и екип, който да се погрижи за нужните документи по Вашата сделка. На Ваше разположение сме всеки ден, от понеделник до неделя от 09:00 до 20:00ч. Възползвайте се от безплатна консултация в наш офис, където ще ви спестим време и ще ви запознаем с всички актуални имоти в България, отговарящи на Вашето търсене. Свържете се с нас на 08******90 /на цената на един градски разговор/ или на 08******90 и цитирайте кода към имота:521-18381
ID: 139037916
Контакт с продавача
xxx xxx xxx
