Бизнес
Цена на кв.м: 1802.83
Тип апартамент: 2 - стаен
Квадратура: 89 кв.м
Година на строителство: 2024 г.
Строителство: Тухла
Етаж: 11-ти
Брой етажи на сградата: 18
Последен етаж
Отопление: Електричество
Обзавеждане: Необзаведен
Състояние на сградата: В строеж
Преход: Без преход
Особености: асансьор
Описание
Компания ”X” представя на Вашето внимание двустаен апартамент в Кършияка.
МЕСТОПОЛОЖЕНИЕ: В близост до магазини за хранителни стоки, спирка на градски транспорт, основни пътни артерии.
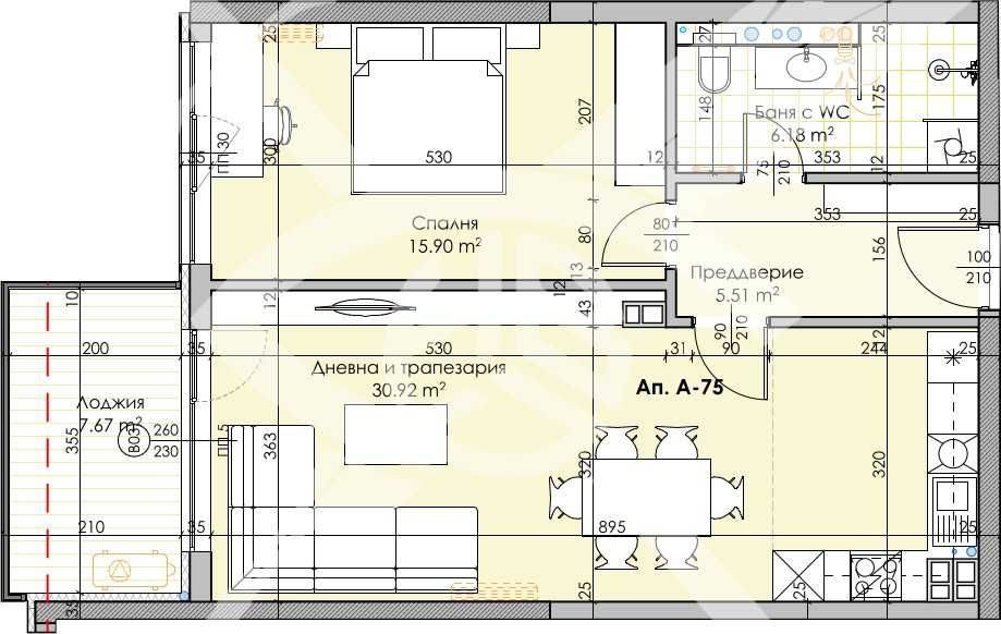
СТРОИТЕЛСТВО: Апартаментът е разположен на непоследен - 11-ти етаж в тухлена сграда.
РАЗПРЕДЕЛЕНИЕ: Жилището разполага с площ от 89 кв.м. разпределна в дневна с трапезария, спалня, баня с тоалетна и лоджия.
СЪСТОЯНИЕ: Необзаведен.
Заповядайте да Ви го покажем. Използвайки нашите услуги Вие ще превърнете закупуването на новия си дом в едно приятно изживяване, ще получите персонален консултант, съдействие при кандидатстване за кредит от всички банки в България, интериорни дизайнери и екип, който да се погрижи за нужните документи по Вашата сделка. На Ваше разположение сме всеки ден, от понеделник до неделя от 09:00 до 20:00ч. Възползвайте се от безплатна консултация в наш офис, където ще ви спестим време и ще ви запознаем с всички актуални имоти в България, отговарящи на Вашето търсене. Имате възможност да обсъдите покупката чрез кредит с нашите банкови консултанти на място в нашите офиси и да получите най-добрите условия! Свържете се с нас на 08******90 или на 08******90 и цитирайте кода към имота: 441-15813
МЕСТОПОЛОЖЕНИЕ: В близост до магазини за хранителни стоки, спирка на градски транспорт, основни пътни артерии.
СТРОИТЕЛСТВО: Апартаментът е разположен на непоследен - 11-ти етаж в тухлена сграда.
РАЗПРЕДЕЛЕНИЕ: Жилището разполага с площ от 89 кв.м. разпределна в дневна с трапезария, спалня, баня с тоалетна и лоджия.
СЪСТОЯНИЕ: Необзаведен.
Заповядайте да Ви го покажем. Използвайки нашите услуги Вие ще превърнете закупуването на новия си дом в едно приятно изживяване, ще получите персонален консултант, съдействие при кандидатстване за кредит от всички банки в България, интериорни дизайнери и екип, който да се погрижи за нужните документи по Вашата сделка. На Ваше разположение сме всеки ден, от понеделник до неделя от 09:00 до 20:00ч. Възползвайте се от безплатна консултация в наш офис, където ще ви спестим време и ще ви запознаем с всички актуални имоти в България, отговарящи на Вашето търсене. Имате възможност да обсъдите покупката чрез кредит с нашите банкови консултанти на място в нашите офиси и да получите най-добрите условия! Свържете се с нас на 08******90 или на 08******90 и цитирайте кода към имота: 441-15813
ID: 136584642
Контакт с продавача
xxx xxx xxx
