Бизнес
Цена на кв.м: 9.90
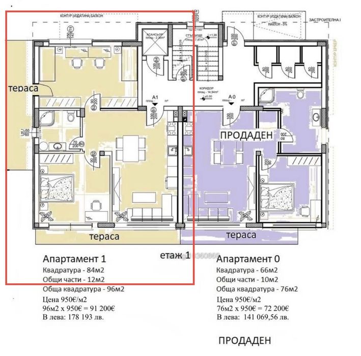
Тип апартамент: 2 - стаен
Квадратура: 96 кв.м
Година на строителство: 2025 г.
Строителство: Тухла
Етаж: 1-ви
Брой етажи на сградата: 4
Последен етаж
Отопление: Прокарва се
Обзавеждане: Необзаведен
Състояние на сградата: В строеж
Преход: С преход
Особености: асансьор, паркинг
Описание
Красива среда в спокоен престижен квартал
Фирма Еко Стронг 1 ООД гр. Хасково предлага за продажба АПАРТАМЕНТИ С ЕДНА ИЛИ ДВЕ СПАЛНИ в ново строителство с луксозно и енергийно ефективно изпълнение, разположени в новострояща се сграда в кв. Червена Стена, гр. Хасково.
Жилищната сграда е а един вход на четири етажа с по един или два апартамента на етаж. Приблизителната площ на апартаментите е от 101м2 до 122м2 с включена обща площ до 14%. За целите на живущите е предвидено складово помещение което е включено в общата площ на апартаментите, както и ПАРКОМЕСТА по 12,5м2 200 евро , които се закупуват отделно по желание от клиента.
Апартаментите са предвидени с една или две спални, баня с тоалетна, голяма дневна с кухненски бокс и тераси с изглед към града или към връх Аида;
Има свободни апартаменти с различни изложения и разпределения.
Намират се на тихо и комуникативно място. В близост има детски градини, магазини и общински басейн. Жилището има висок инвестиционен потенциал. Качествено и модерно строителство, при спазване на всички съвременни Европейски стандарти в бранша. Висок клас на използваните материали. Монолитна стоманобетонна конструкция, оразмерена на земетръс. Външни и вътрешни стени от керамични тухли на водещ европейски производител. Осигурени топло-, хидро- и шумо- изолации. Вътрешни мазилки и замазки. Инсталации, изпълнени със сертифицирани материали на реномирани производители. Стилна фасада с класическа и иновативна архитектура. Качествена дограма с високо-енергийни и ниско-емисионни стъкла. Сигурни и красиви външни врати и асансьор от най-висок клас.
Жилищата се издават на шпакловка и замазка, с просторни и комфортни стаи.
Районът се развива изключително бързо, като предлага бърз достъп до центъра на града.
Старт на строителството - 1 октомври 2024 г. Акт 16 след 36 месеца.
НЕ ОТЛАГАЙТЕ ПОКУПКАТА НА НОВИЯТ СИ ДОМ! НАПРАВЕТЕ ГО ОЩЕ СЕГА!!
Фирма Еко Стронг 1 ООД гр. Хасково предлага за продажба АПАРТАМЕНТИ С ЕДНА ИЛИ ДВЕ СПАЛНИ в ново строителство с луксозно и енергийно ефективно изпълнение, разположени в новострояща се сграда в кв. Червена Стена, гр. Хасково.
Жилищната сграда е а един вход на четири етажа с по един или два апартамента на етаж. Приблизителната площ на апартаментите е от 101м2 до 122м2 с включена обща площ до 14%. За целите на живущите е предвидено складово помещение което е включено в общата площ на апартаментите, както и ПАРКОМЕСТА по 12,5м2 200 евро , които се закупуват отделно по желание от клиента.
Апартаментите са предвидени с една или две спални, баня с тоалетна, голяма дневна с кухненски бокс и тераси с изглед към града или към връх Аида;
Има свободни апартаменти с различни изложения и разпределения.
Намират се на тихо и комуникативно място. В близост има детски градини, магазини и общински басейн. Жилището има висок инвестиционен потенциал. Качествено и модерно строителство, при спазване на всички съвременни Европейски стандарти в бранша. Висок клас на използваните материали. Монолитна стоманобетонна конструкция, оразмерена на земетръс. Външни и вътрешни стени от керамични тухли на водещ европейски производител. Осигурени топло-, хидро- и шумо- изолации. Вътрешни мазилки и замазки. Инсталации, изпълнени със сертифицирани материали на реномирани производители. Стилна фасада с класическа и иновативна архитектура. Качествена дограма с високо-енергийни и ниско-емисионни стъкла. Сигурни и красиви външни врати и асансьор от най-висок клас.
Жилищата се издават на шпакловка и замазка, с просторни и комфортни стаи.
Районът се развива изключително бързо, като предлага бърз достъп до центъра на града.
Старт на строителството - 1 октомври 2024 г. Акт 16 след 36 месеца.
НЕ ОТЛАГАЙТЕ ПОКУПКАТА НА НОВИЯТ СИ ДОМ! НАПРАВЕТЕ ГО ОЩЕ СЕГА!!
ID: 146021189
Контакт с продавача
xxx xxx xxx
Добавена Днес в 06:55 ч.
Двустаен Апартамент Хасково
950 €
Потребител
Локация
гр. Хасково, Червена стена
Област Хасково