Бизнес
Цена на кв.м: 1269.84
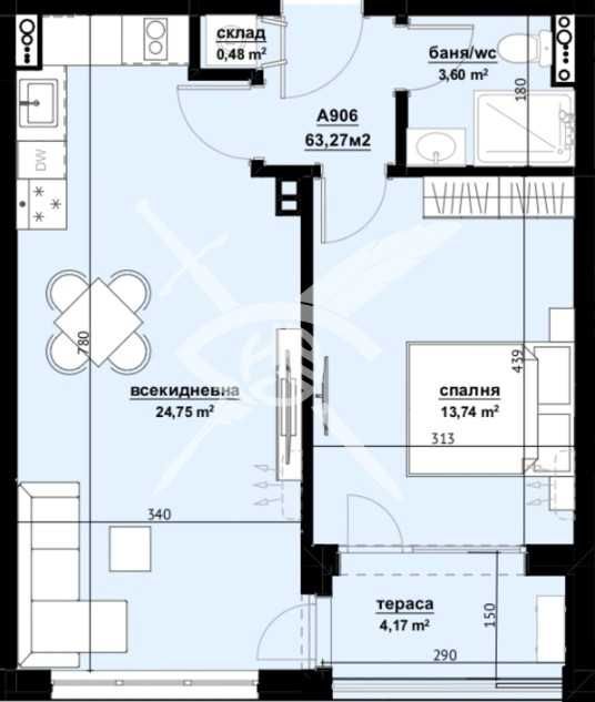
Тип апартамент: 2 - стаен
Квадратура: 63 кв.м
Година на строителство: 2024 г.
Строителство: Тухла
Етаж: 9-ти
Брой етажи на сградата: 9
Последен етаж
Отопление: Електричество
Обзавеждане: Необзаведен
Състояние на сградата: В строеж
Преход: Без преход
Описание
Компания Х представя на Вашето внимание двустаен апартамент в Хоризонт. МЕСТОПОЛОЖЕНИЕ: Намира се в спокойна част на района, в близост до всичко необходимо за еднно домакинство, както и спирки на градски транспорт и учебни заведения. СТРОИТЕЛСТВО: Апартаментът е разположен на девети етаж, тухла. РАЗПРЕДЕЛЕНИЕ: Жилището разполага с площ 63.27 кв.м., състои се от хол с кухненски бокс, спалня, баня с тоалетна склад и тераса. СЪСТОЯНИЕ: Имотът се предлага както на тапа, така и на степен до ключ, което Ви дава възможността да го усторите по Ваш вкус и да го превърнете в мечтания дом! Заповядайте да Ви го покажем. Използвайки нашите услуги Вие ще превърнете закупуването на новия си дом в едно приятно изживяване, ще получите персонален консултант, съдействие при кандидатстване за кредит от всички банки в България, интериорни дизайнери и екип, който да се погрижи за нужните документи по Вашата сделка. На Ваше разположение сме всеки ден, от понеделник до неделя от 09:00 до 20:00ч. Възползвайте се от безплатна консултация в наш офис, където ще ви спестим време и ще ви запознаем с всички актуални имоти в България, отговарящи на Вашето търсене. Свържете се с нас на 08******90 или на 08******83 и цитирайте кода към имота: 799 - 23908.
ID: 142350642
Контакт с продавача
xxx xxx xxx
