Бизнес
Цена на кв.м: 1708.63
Тип апартамент: 2 - стаен
Квадратура: 86 кв.м
Година на строителство: 2025 г.
Строителство: Тухла
Етаж: 2-ри
Брой етажи на сградата: 5
Последен етаж
Отопление: Електричество
Обзавеждане: Необзаведен
Състояние на сградата: В строеж
Преход: С преход
Описание
Компания ’Х’ представя на Вашето внимание двустаен апартамент в квартал Зорница
МЕСТОПОЛОЖЕНИЕ: Квартал Зорница е един от модерните и предпочитани за живеене райони в град Бургас. Разположен е в близост до Морската градина и езерото Вая, което осигурява красиви гледки и удобен достъп до зелени площи и места за разходка. Зорница е добре уреден квартал с множество магазини, спортни съоръжения и спирки на градския транспорт, а спокойната му среда го прави подходящ както за семейства, така и за млади хора.
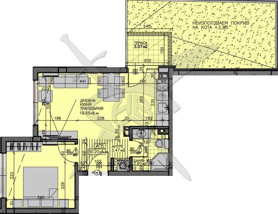
РАПРЕДЕЛЕНИЕ: Апартаментът разполага с площ от 86 кв.м., функционално разпределени в спалня, хол с кухненски бокс, антре и санитарен възел, мокро помещение и тераса.
СЪСТОЯНИЕ: Жилището се предлага в строеж, което предлага на новите собственици да създадат своя нов дом придавайки му индивидуалност и стил, чрез собствен почерк.
Заповядайте да Ви го покажем. Използвайки нашите услуги Вие ще превърнете закупуването на новия си дом в едно приятно изживяване, ще получите персонален консултант, съдействие при кандидатстване за кредит от всички банки в България, интериорни дизайнери и екип, който да се погрижи за нужните документи по Вашата сделка. На Ваше разположение сме всеки ден, от понеделник до неделя от 09:00 до 20:00ч. Възползвайте се от безплатна консултация в наш офис, където ще ви спестим време и ще ви запознаем с всички актуални имоти в България, отговарящи на Вашето търсене. Нужен Ви е кода към имота: Сграда 1324 - 37683
МЕСТОПОЛОЖЕНИЕ: Квартал Зорница е един от модерните и предпочитани за живеене райони в град Бургас. Разположен е в близост до Морската градина и езерото Вая, което осигурява красиви гледки и удобен достъп до зелени площи и места за разходка. Зорница е добре уреден квартал с множество магазини, спортни съоръжения и спирки на градския транспорт, а спокойната му среда го прави подходящ както за семейства, така и за млади хора.
РАПРЕДЕЛЕНИЕ: Апартаментът разполага с площ от 86 кв.м., функционално разпределени в спалня, хол с кухненски бокс, антре и санитарен възел, мокро помещение и тераса.
СЪСТОЯНИЕ: Жилището се предлага в строеж, което предлага на новите собственици да създадат своя нов дом придавайки му индивидуалност и стил, чрез собствен почерк.
Заповядайте да Ви го покажем. Използвайки нашите услуги Вие ще превърнете закупуването на новия си дом в едно приятно изживяване, ще получите персонален консултант, съдействие при кандидатстване за кредит от всички банки в България, интериорни дизайнери и екип, който да се погрижи за нужните документи по Вашата сделка. На Ваше разположение сме всеки ден, от понеделник до неделя от 09:00 до 20:00ч. Възползвайте се от безплатна консултация в наш офис, където ще ви спестим време и ще ви запознаем с всички актуални имоти в България, отговарящи на Вашето търсене. Нужен Ви е кода към имота: Сграда 1324 - 37683
ID: 146293755
Контакт с продавача
xxx xxx xxx
