Бизнес
Цена на кв.м: 1573.68
Брой етажи на сградата: 2
Квадратура: 190 кв.м
Квадратура на двора: 500 кв.м
Година на строителство: 2025 г.
Строителство: Тухла
Отопление: Електричество
Състояние на сградата: В строеж
Описание
ЕРА Варна Тренд предлага за продажба двуетажна новострояща се къща в м-т Манастирски рид, разположена в парцел с правилна форма, равен и с асфалтов достъп. Къщата е с РЗП 190 кв.м и следното разпределение:
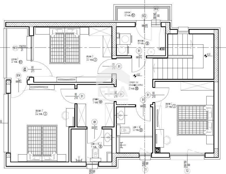
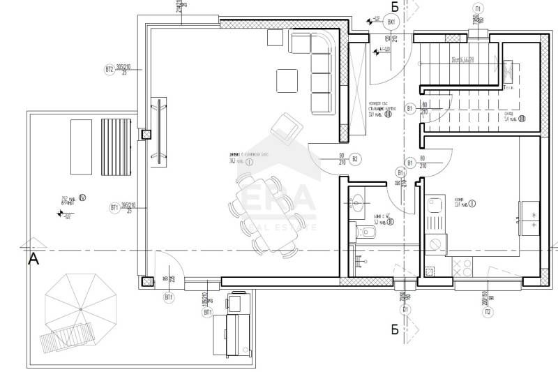
Първият етаж със застроена площ 90,05 кв.м се състои от просторна дневна с кухненски бокс (38,3 кв.м) и излаз на широка веранда (29,2 кв.м), кухня (13,4 кв.м), която може да бъде използвана като спалня, коридор (10,9 кв.м), баня с тоалетна (5,3 кв.м) и склад (5,4 кв.м). Вътрешно стълбище води до втория етаж със застроена площ 99,74 кв.м, който включва родителска спалня (15,1 кв.м) със собствена баня с тоалетна (4 кв.м) и дрешник (5 кв.м), втора спалня (13,7 кв.м), трета спалня (13,4 кв.м), балкон (3,7 кв.м) към две от спалните, коридор (13 кв.м), втора баня с тоалетна (5,3 кв.м) и перално помещение (4,4 кв.м) с излаз на балкон (2,9 кв.м). Изложението е югоизток/югозапад.
Къщата се продава необзаведена. Ще бъде завършена до степен БДС, с поставена ПВЦ дограма. Налични са електричество и вода в имота.
Двуетажната къща е тухлена, на етап на строителство пред издаване на Акт 14. Към нея има самостоятелно дворно място и открито паркомясто в него, включено в продажната цена. В съседство се продава идентична къща, също със собствен парцел.
Оферта №0221733
Първият етаж със застроена площ 90,05 кв.м се състои от просторна дневна с кухненски бокс (38,3 кв.м) и излаз на широка веранда (29,2 кв.м), кухня (13,4 кв.м), която може да бъде използвана като спалня, коридор (10,9 кв.м), баня с тоалетна (5,3 кв.м) и склад (5,4 кв.м). Вътрешно стълбище води до втория етаж със застроена площ 99,74 кв.м, който включва родителска спалня (15,1 кв.м) със собствена баня с тоалетна (4 кв.м) и дрешник (5 кв.м), втора спалня (13,7 кв.м), трета спалня (13,4 кв.м), балкон (3,7 кв.м) към две от спалните, коридор (13 кв.м), втора баня с тоалетна (5,3 кв.м) и перално помещение (4,4 кв.м) с излаз на балкон (2,9 кв.м). Изложението е югоизток/югозапад.
Къщата се продава необзаведена. Ще бъде завършена до степен БДС, с поставена ПВЦ дограма. Налични са електричество и вода в имота.
Двуетажната къща е тухлена, на етап на строителство пред издаване на Акт 14. Към нея има самостоятелно дворно място и открито паркомясто в него, включено в продажната цена. В съседство се продава идентична къща, също със собствен парцел.
Оферта №0221733
ID: 144967334
Контакт с продавача
xxx xxx xxx

