Бизнес
Цена на кв.м: 2451.61
Брой етажи на сградата: 2
Квадратура: 155 кв.м
Квадратура на двора: 410 кв.м
Година на строителство: 2025 г.
Строителство: Тухла
Отопление: Електричество
Състояние на сградата: В строеж
Описание
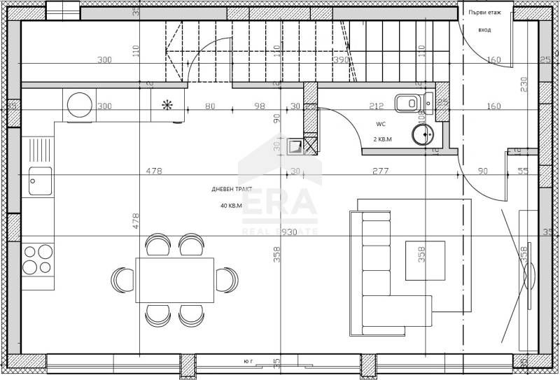
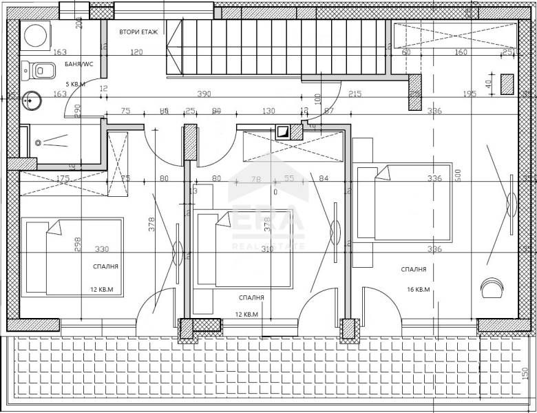
ЕРА Варна Тренд предлага за продажба двуетажна новострояща се къща с двор и морска панорама, в кв. Виница, с асфалтов достъп. Къщата е с РЗП 154,77 кв.м и следното разпределение:
Първият етаж се състои от входно антре, прострорна дневна с кухненски бокс и трапезария (40 кв.м), веранда (20 кв.м) и санитарен възел (2 кв.м). Вътрешно стълбище води до втория етаж, който включва три спални (16 кв.м, 12 кв.м и 12 кв.м) с излаз на обща за трите стаи тераса, коридор и баня с тоалетна (5 кв.м). Изложението е южно, като се открива красива морска панорама от кота 0.
Къщата се продава необзаведена. Ще бъде завършена до степен БДС: дограма - Kömmerling с троен стъклопакет; изолация - 10 см стиропор с минерална мазилка; покрив с ПВЦ мембрана; вътрешни мазилки - ВАРОВИ (регулиращи влажността, антибактериални). Налични са електричество и вода в имота.
Двуетажната къща е тухлена, на начален етап на строителство. Ще бъде въведена в експлоатация (Акт 16) през 2027 г. Дворното място към нея е с площ 410 кв.м, като има две открити паркоместа (по 20 кв.м всяко), включени в продажната цена. В целия парцел с обща площ 820 кв.м се продава още една идентична новострояща се къща, също на цена 390 000 евро. Има възможност за монтиране на фотоволтаична система след договаряне.
Оферта №0221700
Първият етаж се състои от входно антре, прострорна дневна с кухненски бокс и трапезария (40 кв.м), веранда (20 кв.м) и санитарен възел (2 кв.м). Вътрешно стълбище води до втория етаж, който включва три спални (16 кв.м, 12 кв.м и 12 кв.м) с излаз на обща за трите стаи тераса, коридор и баня с тоалетна (5 кв.м). Изложението е южно, като се открива красива морска панорама от кота 0.
Къщата се продава необзаведена. Ще бъде завършена до степен БДС: дограма - Kömmerling с троен стъклопакет; изолация - 10 см стиропор с минерална мазилка; покрив с ПВЦ мембрана; вътрешни мазилки - ВАРОВИ (регулиращи влажността, антибактериални). Налични са електричество и вода в имота.
Двуетажната къща е тухлена, на начален етап на строителство. Ще бъде въведена в експлоатация (Акт 16) през 2027 г. Дворното място към нея е с площ 410 кв.м, като има две открити паркоместа (по 20 кв.м всяко), включени в продажната цена. В целия парцел с обща площ 820 кв.м се продава още една идентична новострояща се къща, също на цена 390 000 евро. Има възможност за монтиране на фотоволтаична система след договаряне.
Оферта №0221700
ID: 145047084
Контакт с продавача
xxx xxx xxx