Бизнес
Описание
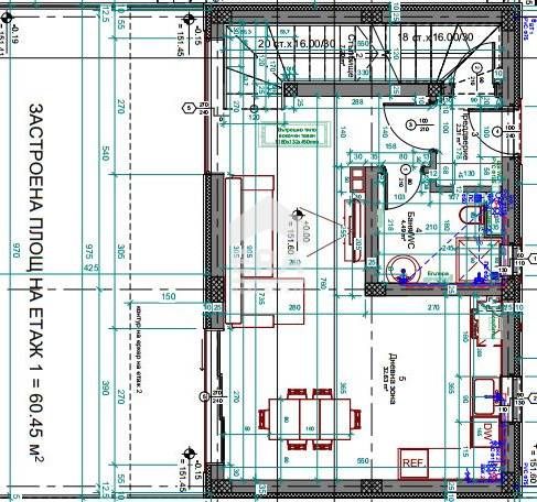
ЕРА Лайф обявява за продажба къща на два етажа в тих район с отличен асфалтов достъп в жк"Изгрев", на около километър от главния булевард "Христо Смирненски" над Военна болница. Имотът е със следното разпределение: Първи етаж (60,45 кв.м.): входно преддверие - 2,31 кв.м., дневен тракт с кухненска част - 32,63 кв.м. с излаз на прилежащ двор 350 кв.м., баня с тоалетна - 4,49 кв.м. По вътрешно стълбище се достига втори етаж (75,08 кв.м.): стълбище/коридор - 17,96 кв.м., три спални - 10,69, 12,68 и 12,48 кв.м. Към имота се предлага голяма изба с площ 50 кв.м. В къщата е прокарано подово отопление и изводи за климатици. Имотът е ограден с каменна и зелена ограда. До Акт 16 остават около 3 месеца.
В цената са включени две паркоместа във вътрешния двор.
Завършване: БДС - на шпакловка и замазка. По желание на клиента е възможно и завършване до ключ. Схема на плащане: 10 % на предварителен договор и 90% на Акт 16. Срок на въвеждане в експлоатация декември 2025г. Модерна съвременна визия и качествено строителство.
Къщата е близнак и е част от комплекс от три къщи. Автобусните линии обслужващи района са 10 и 13. Код: 0707880
Оферта №0707880
В цената са включени две паркоместа във вътрешния двор.
Завършване: БДС - на шпакловка и замазка. По желание на клиента е възможно и завършване до ключ. Схема на плащане: 10 % на предварителен договор и 90% на Акт 16. Срок на въвеждане в експлоатация декември 2025г. Модерна съвременна визия и качествено строителство.
Къщата е близнак и е част от комплекс от три къщи. Автобусните линии обслужващи района са 10 и 13. Код: 0707880
Оферта №0707880
ID: 145490855
Контакт с продавача
xxx xxx xxx

