Бизнес
Цена на кв.м: 1646.23
Тип апартамент: 4 - стаен
Квадратура: 106 кв.м
Година на строителство: 2025 г.
Строителство: Тухла
Етаж: 1-ви
Брой етажи на сградата: 4
Последен етаж
Отопление: Електричество
Обзавеждане: Необзаведен
Състояние на сградата: В строеж
Преход: Без преход
Особености: асансьор
Описание
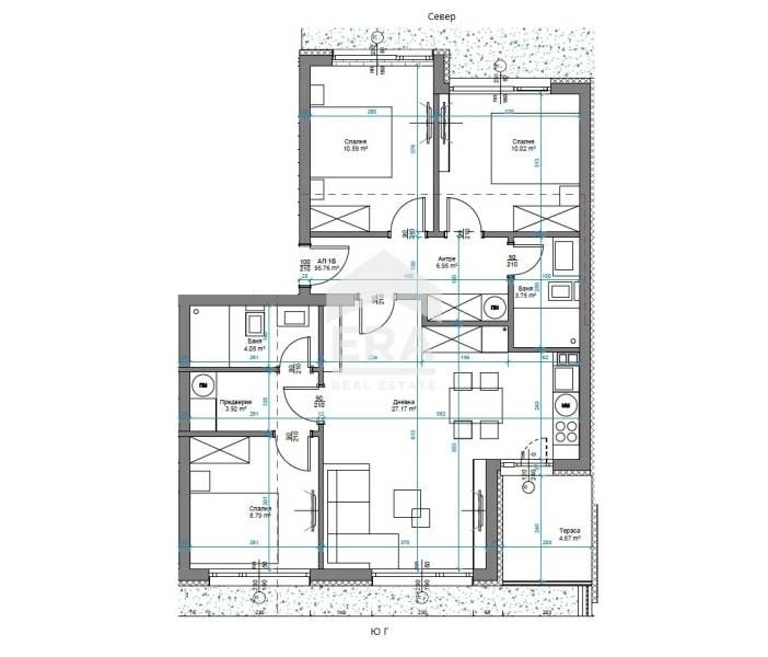
ЕКСКЛУЗИВНО! ЕРА Варна Тренд предлага за продажба четиристаен апартамент с голяма дневна и собствен двор, в новострояща се сграда на ул. Орхидея, на 500 м над бул. Христо Смирненски и хипермаркет Билла на ул. Подвис. Имотът е със застроена площ 95,76 кв.м (105,52 кв.м с общите части), разположен на първи партерен етаж. Състои се от просторна дневна с кухненски бокс (27,17 кв.м) и излаз на тераса (4,87 кв.м), три спални (10,02 кв.м, 10,59 кв.м и 8,79 кв.м), най-малката с дрешник (3,82 кв.м) и баня с тоалетна (4,08 кв.м), входно антре (6,95 кв.м) с ниша за перално помещение/килер и втора баня с тоалетна (3,75 кв.м). Към жилището има и прилежащ двор, с излаз от дневната на юг и от две от спалните на север.
Имотът се продава необзаведен. Ще бъде завършен до степен БДС, с поставена ПВЦ дограма. Отоплението ще бъде с електричество.
Четиристайният апартамент се намира на ул. Орхидея, в кв. Изгрев, на 500 м над бул. Христо Смирненски и хипермаркет Билла на ул. Подвис. Сградата е четириетажна, тухлена, с асансьор, на начален етап на строителство. Ще бъде въведена в експлоатация (Акт 16) през 2028 г. Има възможност за допълнително закупуване на открито паркомясто, на цена 21 000 евро. В сградата се предлагат също тристайни жилища и един двустаен апартамент. На пешеходно разстояние са още Военна болница на главния околовръстен път, Цветен квартал и кв. Левски, с детска ясла, детски градини, училища, Втори корпус на Икономически университет, спирки на градския транспорт.
Оферта №0222482
Имотът се продава необзаведен. Ще бъде завършен до степен БДС, с поставена ПВЦ дограма. Отоплението ще бъде с електричество.
Четиристайният апартамент се намира на ул. Орхидея, в кв. Изгрев, на 500 м над бул. Христо Смирненски и хипермаркет Билла на ул. Подвис. Сградата е четириетажна, тухлена, с асансьор, на начален етап на строителство. Ще бъде въведена в експлоатация (Акт 16) през 2028 г. Има възможност за допълнително закупуване на открито паркомясто, на цена 21 000 евро. В сградата се предлагат също тристайни жилища и един двустаен апартамент. На пешеходно разстояние са още Военна болница на главния околовръстен път, Цветен квартал и кв. Левски, с детска ясла, детски градини, училища, Втори корпус на Икономически университет, спирки на градския транспорт.
Оферта №0222482
ID: 147485967
Контакт с продавача
xxx xxx xxx

