Бизнес
Цена на кв.м: 2066.67
Тип апартамент: 4 - стаен
Квадратура: 135 кв.м
Година на строителство: 2027 г.
Строителство: Тухла
Етаж: 5-ти
Брой етажи на сградата: 7
Последен етаж
Отопление: Електричество
Обзавеждане: Необзаведен
Състояние на сградата: Завършена
Преход: Без преход
Описание
Представяме Ви светъл и функционално разпределен четиристаен апартамент, разположен на 5-ти етаж в седеметажна модерна жилищна сграда, изпълнена с висококачествени материали, които гарантират дълготрайност, енергийна ефективност и съвременен комфорт.
Имотът се намира в един от най-предпочитаните и динамично развиващи се райони на София – кв. Манастирски ливади. Районът предлага комбинация от спокойна жилищна атмосфера и бърз достъп до ключови транспортни връзки като бул. „България“, Околовръстен път и трамвайни и автобусни линии. В непосредствена близост се намират магазини, заведения, спортни центрове, здравни услуги и други удобства, осигуряващи комфортно ежедневие.
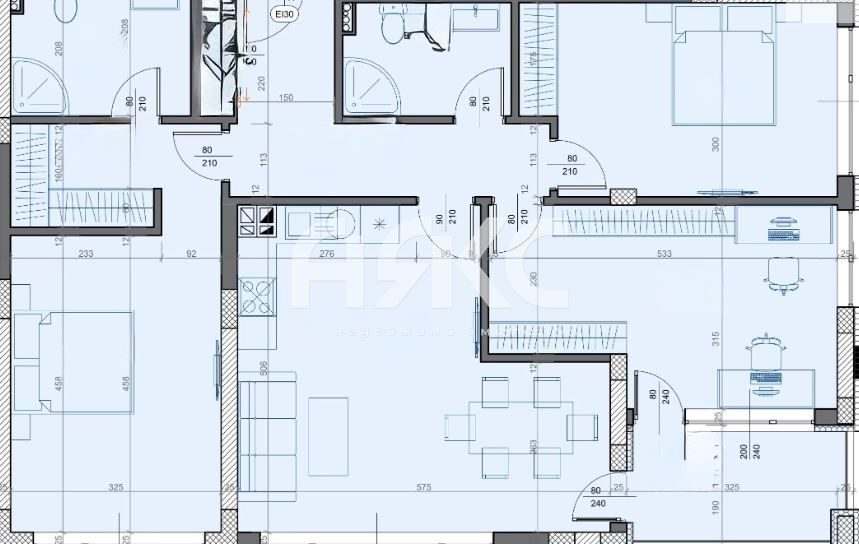
Разпределение
Апартаментът предлага отлично организирано вътрешно оформление:
Просторен хол с кухненски бокс – светла дневна зона с излаз към тераса
Родителска спалня със собствена баня и тоалетна
Втора самостоятелна спалня
Кабинет / трета спалня
Отделна баня с тоалетна
Килер / складово помещение
Тераса, достъпна от дневната зона
Качество на строителството
Сградата е изпълнена с първокласни материали и модерни строителни технологии, които осигуряват:
Отлична топло- и шумоизолация
Естетични и добре поддържани общи части
Дълготрайност и надеждност на конструкцията
За повече информация и за организиране на оглед, не се колебайте да се свържете с нас. Ще се радваме да ви предоставим всички детайли и да уговорим удобен час за посещение на имота!
Отговорен брокер Йоан Мариянов
08******92
Имотът се намира в един от най-предпочитаните и динамично развиващи се райони на София – кв. Манастирски ливади. Районът предлага комбинация от спокойна жилищна атмосфера и бърз достъп до ключови транспортни връзки като бул. „България“, Околовръстен път и трамвайни и автобусни линии. В непосредствена близост се намират магазини, заведения, спортни центрове, здравни услуги и други удобства, осигуряващи комфортно ежедневие.
Разпределение
Апартаментът предлага отлично организирано вътрешно оформление:
Просторен хол с кухненски бокс – светла дневна зона с излаз към тераса
Родителска спалня със собствена баня и тоалетна
Втора самостоятелна спалня
Кабинет / трета спалня
Отделна баня с тоалетна
Килер / складово помещение
Тераса, достъпна от дневната зона
Качество на строителството
Сградата е изпълнена с първокласни материали и модерни строителни технологии, които осигуряват:
Отлична топло- и шумоизолация
Естетични и добре поддържани общи части
Дълготрайност и надеждност на конструкцията
За повече информация и за организиране на оглед, не се колебайте да се свържете с нас. Ще се радваме да ви предоставим всички детайли и да уговорим удобен час за посещение на имота!
Отговорен брокер Йоан Мариянов
08******92
ID: 146337261
Контакт с продавача
xxx xxx xxx
Добавена 12 декември 2025 г.
Четиристаен апартамент в кв. Манастирски ливади.
545676.57 лв. / 279000 €
Потребител
Локация
гр. София, Манастирски ливади
Област София-град
За този потребител