Бизнес
Цена на кв.м: 550.13
Тип апартамент: многостаен
Квадратура: 418 кв.м
Година на строителство: 2028 г.
Строителство: Тухла
Етаж: 9-ти
Брой етажи на сградата: 9
Последен етаж
Отопление: Електричество
Обзавеждане: Необзаведен
Състояние на сградата: В строеж
Преход: Без преход
Описание
Ем Джи Естейт Ви предлага нов, уникален по рода си проект, който ще Ви предложи уют, сигурност и стил на едно място. Проектът е създаден с мисъл за бъдещето, с модерна визия, елегантна архитектура, иновативни технологии и комфорт.
ДИРЕКТНО ОТ ДОКАЗАЛ СЕ СТРОИТЕЛ.
БЕЗ КОМИСИОНА ОТ КУПУВАЧА.
БЕЗ ТАКСА ПОДДРЪЖКА.
За апартамента:
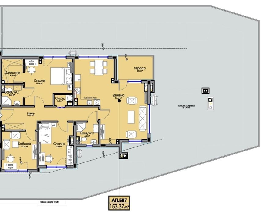
Четиристаен апартамент, състоящ се от много просторна всекидневна с обособен кухненски кът и трапезария с излаз на тераса, спалня с дрешник и собствена баня с тоалетна, втора спалня, кабинет трета спалня, коридор, обща баня с тоалетна, склад
Обща площ: 418,10 кв.м. от които чистата жилищна площ е 136,79 кв.м., общи части 16,58 кв.м. и голяма тераса с площ 264,73 кв.м.
Етаж: 9 последен
Възможност за закупуване на открито, подземно паркомясто или гараж.
За сградата:
Сградата ще бъде изградена в новия за гр.Бургас кв.Хоризонт нов, бързоразвиващ се район, в непосредствена близост до студентския кампус, чийто строеж е вече стартирал. Недалеч от големи вериги хранителни и нехранителни магазини.
Основни характеристики на обекта:
Два отделни входа с контролиран достъп
По два асансьора във всеки вход
Функционално разпределени апартаменти двустайни, тристайни и четиристайни
Търговски площи и гаражи на етаж 1
Открити паркоместа и подземни гаражи
Съвременно строителство с висок клас материали и енергийна ефективност
Различна и изключително модерна визия
Строителният процес на сградата ще започне месец септември 2025г. и ще продължи 30 месеца.
За да бъде процеса на закупуване на вашето ново жилище възможно най-лесен и удобен ще Ви бъде предложена гъвкава схема на заплащане.
Станете част от проекта преди всички останали и запазете своя имот още на етап строеж на по-добра цена!
**Можем да организираме оглед на имота в удобно за вас време, като за целта се свържете с нас на посочените телефони и цитирате този код: ДП-1488776.
**Агенция Ем Джи Естейт е член на НСНИ и администратор на лични данни.
**Преди огледа се провежда среща в нашия офис, за да се запознаем с изискванията Ви и за да оформим документи съгласно ЗЗД и ЗМИП.
**По време на огледа се подписва Протокол за оглед.
**За този имот не се дължи комисиона към агенцията.
**Предлагаме Ви юридическо съдействие през целия процес на покупката.
**Лицензиран кредитен консултант ще Ви съдейства при банково кредитиране.
ДИРЕКТНО ОТ ДОКАЗАЛ СЕ СТРОИТЕЛ.
БЕЗ КОМИСИОНА ОТ КУПУВАЧА.
БЕЗ ТАКСА ПОДДРЪЖКА.
За апартамента:
Четиристаен апартамент, състоящ се от много просторна всекидневна с обособен кухненски кът и трапезария с излаз на тераса, спалня с дрешник и собствена баня с тоалетна, втора спалня, кабинет трета спалня, коридор, обща баня с тоалетна, склад
Обща площ: 418,10 кв.м. от които чистата жилищна площ е 136,79 кв.м., общи части 16,58 кв.м. и голяма тераса с площ 264,73 кв.м.
Етаж: 9 последен
Възможност за закупуване на открито, подземно паркомясто или гараж.
За сградата:
Сградата ще бъде изградена в новия за гр.Бургас кв.Хоризонт нов, бързоразвиващ се район, в непосредствена близост до студентския кампус, чийто строеж е вече стартирал. Недалеч от големи вериги хранителни и нехранителни магазини.
Основни характеристики на обекта:
Два отделни входа с контролиран достъп
По два асансьора във всеки вход
Функционално разпределени апартаменти двустайни, тристайни и четиристайни
Търговски площи и гаражи на етаж 1
Открити паркоместа и подземни гаражи
Съвременно строителство с висок клас материали и енергийна ефективност
Различна и изключително модерна визия
Строителният процес на сградата ще започне месец септември 2025г. и ще продължи 30 месеца.
За да бъде процеса на закупуване на вашето ново жилище възможно най-лесен и удобен ще Ви бъде предложена гъвкава схема на заплащане.
Станете част от проекта преди всички останали и запазете своя имот още на етап строеж на по-добра цена!
**Можем да организираме оглед на имота в удобно за вас време, като за целта се свържете с нас на посочените телефони и цитирате този код: ДП-1488776.
**Агенция Ем Джи Естейт е член на НСНИ и администратор на лични данни.
**Преди огледа се провежда среща в нашия офис, за да се запознаем с изискванията Ви и за да оформим документи съгласно ЗЗД и ЗМИП.
**По време на огледа се подписва Протокол за оглед.
**За този имот не се дължи комисиона към агенцията.
**Предлагаме Ви юридическо съдействие през целия процес на покупката.
**Лицензиран кредитен консултант ще Ви съдейства при банково кредитиране.
ID: 146567264
Контакт с продавача
xxx xxx xxx
Добавена 04 януари 2026 г.
Четиристаен апартамент в кв. Хоризонт - Бургас.
449752.89 лв. / 229955 €
Потребител
Локация
гр. Бургас, Изгрев
Област Бургас
За този потребител