Бизнес
Състояние: ново
OLX Доставка
Описание
ПРЕЧИСТВАТЕЛНА СТАНЦИЯ ЗА ОТПАДЪЧНИ ВОДИ МОДЕЛ “BIO - 6”
Съоръжението е подходящо за малки предприятия, еднофамилни къщи, вили, горски хижи къмпинги и др.
Налични са и по-големи пречиствателни станции за по-голям брой хора, както и промишлени станции подходящи дори и за малко село. Може да се купи и допълнителна станция за 100% пречистване на водата в който случай става годна за ползване в домакинството.
ИЗПОЛЗВАНЕ
Пречиствателна станция „BIO-6” e стандартен клас механично-биологично пречиствателно съоръжение за пречистване на битово-фекални отпадъчни води от еднофамилни къщи, малки семейни хотели, малки предприятия, вили, хижи и др. „BIO-6” се отличава с нетрудоемък и икономичен режим на работа. В пречиствателното съоръжение се изливат отходните води на тоалетни, бани, сервизни помещения и кухни. ПСОВ „BIO-6” може да се инсталира на места, които не са свързани с централната канализационна мрежа. В този случай отпадъчните води се пречистват на място.
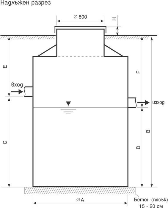
ОПИСАНИЕ
Съоръжението „BIO-6” се състои от един компактен пластмасов контейнер (от полипропилен), разделен от прегради на единични функционални камери. Състои се от утайник, аерационна зона, вторичен утайник, складов участък за излишната утайка. Пречиствателното съоръжение е снабдено с отварящ се капак (люк), улесняващ следенето на прочистващия процес. Източник на въздух за аериране в аерационната зона е бутален компресор. Стабилността по време на работа на пречистващото устройство се постига чрез използването на изпитана и проверена ДН-технология (денитрификация и нитрификация) по аеробен начин (обогаряване на водата с кислород).
ПОКАЗАТЕЛИ
Пречистената вода е с показатели за заустване в приемник ІІ-ра категория. Пречистената от съоръжението вода може да се заусти в дере, в река, в разливно поле или да се използва за поливане след дизинфекция.
Съоръжението е подходящо за малки предприятия, еднофамилни къщи, вили, горски хижи къмпинги и др.
Налични са и по-големи пречиствателни станции за по-голям брой хора, както и промишлени станции подходящи дори и за малко село. Може да се купи и допълнителна станция за 100% пречистване на водата в който случай става годна за ползване в домакинството.
ИЗПОЛЗВАНЕ
Пречиствателна станция „BIO-6” e стандартен клас механично-биологично пречиствателно съоръжение за пречистване на битово-фекални отпадъчни води от еднофамилни къщи, малки семейни хотели, малки предприятия, вили, хижи и др. „BIO-6” се отличава с нетрудоемък и икономичен режим на работа. В пречиствателното съоръжение се изливат отходните води на тоалетни, бани, сервизни помещения и кухни. ПСОВ „BIO-6” може да се инсталира на места, които не са свързани с централната канализационна мрежа. В този случай отпадъчните води се пречистват на място.
ОПИСАНИЕ
Съоръжението „BIO-6” се състои от един компактен пластмасов контейнер (от полипропилен), разделен от прегради на единични функционални камери. Състои се от утайник, аерационна зона, вторичен утайник, складов участък за излишната утайка. Пречиствателното съоръжение е снабдено с отварящ се капак (люк), улесняващ следенето на прочистващия процес. Източник на въздух за аериране в аерационната зона е бутален компресор. Стабилността по време на работа на пречистващото устройство се постига чрез използването на изпитана и проверена ДН-технология (денитрификация и нитрификация) по аеробен начин (обогаряване на водата с кислород).
ПОКАЗАТЕЛИ
Пречистената вода е с показатели за заустване в приемник ІІ-ра категория. Пречистената от съоръжението вода може да се заусти в дере, в река, в разливно поле или да се използва за поливане след дизинфекция.
ID: 136726043
Контакт с продавача
xxx xxx xxx
Добавена 17 февруари 2026 г.
Бургас - Пречиствателна станция за отпадъчни води
5300 лв. / 2709.85 €
Потребител
Локация