Бизнес
Цена на кв.м: 1356.34
Тип апартамент: 4 - стаен
Квадратура: 160 кв.м
Година на строителство: 2025 г.
Строителство: Тухла
Етаж: 2-ри
Брой етажи на сградата: 5
Последен етаж
Отопление: Електричество
Обзавеждане: Необзаведен
Състояние на сградата: В строеж
Преход: Без преход
Особености: асансьор, лизинг, паркинг, саниран, затворен комплекс
Описание
Четиристаен апартамент! Апартаменти за инвестиция! Бул. „3-ти март“ 54, кв. Запад 2! ОТ СТРОИТЕЛЯ!
ДИРЕКТНО ОТ СТРОИТЕЛЯ!
БЕЗ КОМИСИОНА ОТ КУПУВАЧА!
ПЛАЩАНЕ НА ВНОСКИ!
АКТИВ ИМОТИ представя:
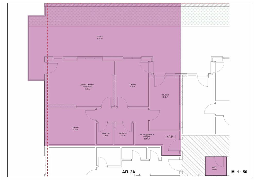
Четиристаен апартамент
Местонахождение: бул. „3-ти март“ 54, кв. Запад 2
Разположен на втори жилищен етаж с асансьор
Площ: 158,51 кв. м.
Разпределение:
Входно преддверие с коридор, дневена-хол с кухненски бокс и тераса, три спални, от които двете с тераса, две бани с тоалетна, килер.
Изложение: Изток/Север
Съдействаме за получаване на ипотечен кредит
Реф.№ 4265 (2А)
Жилищен комплекс АЛГАРА - перлата в кв. Запад 2, гр. Търговище, бул. „3-ти март“ 54.
Проект на Актив!
Зеленина, свежест и класа-това събира в себе си Комплекс АЛГАРА, даващ усещане за спокойствие и хармония.
С изчистена и стилна визия, Комплекс АЛГАРА е изграден от две самостоятелни жилищни сгради на 5 етажа,
предлагащи висок комфорт на обитаване, спокойствие и уединение.
Типовете апартаменти са с една, две и три спални, както и градински апартаменти със собствен двор.
Осигурено е подземно и надземно паркиране, с гаражи и паркоместа към всяко жилище.
За децата е предвидена детска площадка.
Осигурена е достъпна среда.
Технически характеристики:
• Конструкция – монолитна стоманобетонна безгредова
• Тухли: 25 см
• Вътрешни стени и тавани: машинно гипсова мазилка
• Подове: изравнителна замазка
• Цялостна система за топлоизолация 10 см
• Силикатна мазилка
• Висококачествена PVC дограма
• Луксозни общи части
• Асансьор
• Домофонна система
• Електроинсталация с ключове и контакти
• Изградена ВиК инсталация до тапа, монтирани водомери с
дистанционно отчитане
• Направено окабеляване за интернет, телевизия, телефон
• Входни блиндирани врати
АКТИВ ИМОТИ - ИМОТ ЗА ВСЕКИ
www.active-imoti.com
7700 Търговище
ул.Г.С.Раковски 75
Burada Turkce konusuyoruz!
We speak English!
Wir sprechen Deutsch!
Mы говорим по Русски!
РАЗЧИТАЙТЕ НА НАС ПРИ ИЗБОРА НА ВАШИЯ ИМОТ!
АКТИВ ИМОТИ - ТРАДИЦИЯ, КАЧЕСТВО, ДОВЕРИЕ, СИГУРНОСТ!
ДИРЕКТНО ОТ СТРОИТЕЛЯ!
БЕЗ КОМИСИОНА ОТ КУПУВАЧА!
ПЛАЩАНЕ НА ВНОСКИ!
АКТИВ ИМОТИ представя:
Четиристаен апартамент
Местонахождение: бул. „3-ти март“ 54, кв. Запад 2
Разположен на втори жилищен етаж с асансьор
Площ: 158,51 кв. м.
Разпределение:
Входно преддверие с коридор, дневена-хол с кухненски бокс и тераса, три спални, от които двете с тераса, две бани с тоалетна, килер.
Изложение: Изток/Север
Съдействаме за получаване на ипотечен кредит
Реф.№ 4265 (2А)
Жилищен комплекс АЛГАРА - перлата в кв. Запад 2, гр. Търговище, бул. „3-ти март“ 54.
Проект на Актив!
Зеленина, свежест и класа-това събира в себе си Комплекс АЛГАРА, даващ усещане за спокойствие и хармония.
С изчистена и стилна визия, Комплекс АЛГАРА е изграден от две самостоятелни жилищни сгради на 5 етажа,
предлагащи висок комфорт на обитаване, спокойствие и уединение.
Типовете апартаменти са с една, две и три спални, както и градински апартаменти със собствен двор.
Осигурено е подземно и надземно паркиране, с гаражи и паркоместа към всяко жилище.
За децата е предвидена детска площадка.
Осигурена е достъпна среда.
Технически характеристики:
• Конструкция – монолитна стоманобетонна безгредова
• Тухли: 25 см
• Вътрешни стени и тавани: машинно гипсова мазилка
• Подове: изравнителна замазка
• Цялостна система за топлоизолация 10 см
• Силикатна мазилка
• Висококачествена PVC дограма
• Луксозни общи части
• Асансьор
• Домофонна система
• Електроинсталация с ключове и контакти
• Изградена ВиК инсталация до тапа, монтирани водомери с
дистанционно отчитане
• Направено окабеляване за интернет, телевизия, телефон
• Входни блиндирани врати
АКТИВ ИМОТИ - ИМОТ ЗА ВСЕКИ
www.active-imoti.com
7700 Търговище
ул.Г.С.Раковски 75
Burada Turkce konusuyoruz!
We speak English!
Wir sprechen Deutsch!
Mы говорим по Русски!
РАЗЧИТАЙТЕ НА НАС ПРИ ИЗБОРА НА ВАШИЯ ИМОТ!
АКТИВ ИМОТИ - ТРАДИЦИЯ, КАЧЕСТВО, ДОВЕРИЕ, СИГУРНОСТ!
ID: 143487633
Контакт с продавача
xxx xxx xxx

