Частна
Цена на кв.м: 1127.05
Брой етажи на сградата: 2
Квадратура: 244 кв.м
Квадратура на двора: 500 кв.м
Година на строителство: 2024 г.
Строителство: Тухла
Отопление: Електричество
Състояние на сградата: В строеж
Особености: канализация
Описание
Луксозна къща за продажба. Намира се в с. Еленово. Къщата е изградена в парцел с площ от 500 кв.м., с РЗП 244 кв.м. Предлаганият имот е със следното разпределение:
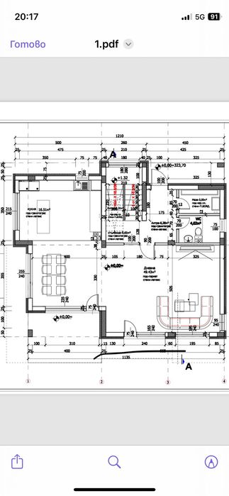
Първи етаж - просторна дневна с кухненски бокс и трапезария, баня със санитарен възел, стълбищна клетка, складово помещение, излаз към двор;
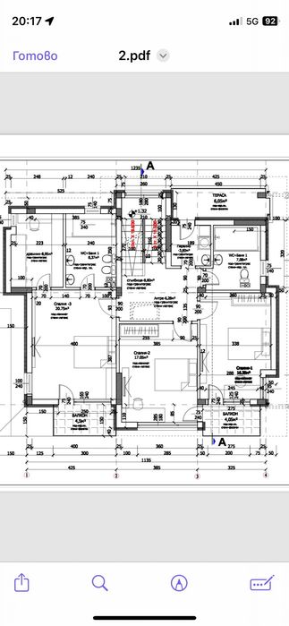
Втори етаж - три спални, една от които със самостоятелен санитарен възел и дрешник; за другите две спални е предвидена още една баня със санитарен възел; три тераси и перално помещение.
Къщата ще бъде предадена в следното състояние:
- външна 10 см изолация
- гипсокартон с 10 см вата на стените
- Под с циментова замазка,
- ВиК до тапа, Ел до точка
- висококачествена дограма и входна врата, стъклен парапет на терасите
Първи етаж - просторна дневна с кухненски бокс и трапезария, баня със санитарен възел, стълбищна клетка, складово помещение, излаз към двор;
Втори етаж - три спални, една от които със самостоятелен санитарен възел и дрешник; за другите две спални е предвидена още една баня със санитарен възел; три тераси и перално помещение.
Къщата ще бъде предадена в следното състояние:
- външна 10 см изолация
- гипсокартон с 10 см вата на стените
- Под с циментова замазка,
- ВиК до тапа, Ел до точка
- висококачествена дограма и входна врата, стъклен парапет на терасите
ID: 140292544
Контакт с продавача
xxx xxx xxx
Добавена 26 ноември 2025 г.
Благоевград с.Еленово къща
537853.25 лв. / 275000 €
Потребител
Локация
гр. Благоевград, Еленово 1
Област Благоевград