Бизнес
Цена на кв.м: 8.44
Квадратура: 1007 кв.м
Година на строителство: 1970 г.
Строителство: Тухла
Етаж: Партер
Брой етажи на сградата: 3
Последен етаж
Отопление: Електричество
Описание
Primo+ недвижими имоти ви предлага изключително атрактивен търговски имот, разположен в идеалния център на град Велико Търново, находящ се в обновяващия се и добре познат на всички- комплекс ,,Полтава'' .
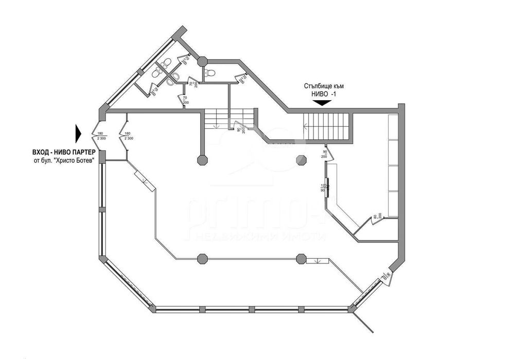
Помещението заема ключова позиция с лице към две улици и достъп от главния булевард ,,Христо Ботев''. Локацията се характеризира с интензивен пешеходен и автомобилен трафик, изградена инфраструктура и постоянна бизнес активност, което я позиционира като една от най-търсените търговски зони в града.
Наличието на два самостоятелни входа позволява независима експлоатация на отделните помещения, а вътрешната връзка между нивата чрез стълбище осигурява допълнителна функционалност и възможност за комбинирано използване.
Този заслужаващ вашето внимание бизнес имот е с обща разгъната застроена площ от 1007 кв.м., функционално разпределена между две основни нива партер и подземно ниво (-1), както и прилежащи общи части, включително входно фоайе, комуникационни пространства и тераса.
Партерното ниво е с площ от 271 кв.м. и предлага просторни, отворени пространства с директен достъп от улицата, което го прави изключително подходящо за развиване на търговска дейност или заведение. Разпределението позволява обособяване на различни функционални зони зала за клиенти, барова част, кухня и обслужващи помещения.
Обектът е особено подходящ за ресторант, като съществува възможност за допълнително наемане на тераса с площ от 181 кв.м., която значително увеличава капацитета и атрактивността на заведението.
Подземното ниво (-1) е с площ от 555 кв.м. и е организирано като самостоятелна функционална зона. Разпределението включва просторни зали, обслужващи помещения, санитарни възли и складови части, което позволява ефективна организация на дейността. Нивото разполага с отделен вход, което го прави напълно независимо от партерната част и създава възможност за паралелно функциониране на различни бизнес концепции. Благодарение на своята площ, разпределение и изолираност, пространството е изключително подходящо за нощен бар, клуб или дискотека.
Цялостната конфигурация на имота предоставя отлични възможности, както за самостоятелно, така и за комбинирано използване на двете нива, в зависимост от инвестиционната концепция и бизнес стратегията. Разпределението му е съобразено с обслужването на значителен поток от хора, като предлага гъвкавост при преустройство и адаптация към различни бизнес концепции. Пространствата могат да бъдат използвани както съвместно, така и разделени, в зависимост от нуждите на бъдещия наемател.
В непосредствена близост до имота са разположени ключови административни, търговски и обществени обекти, включително банкови институции, заведения, магазини и учебни заведения, сред които Великотърновски университет Св. св. Кирил и Методий . Районът е динамичен и активен през целия ден, като съчетава бизнес среда и постоянен човекопоток. Допълнително предимство е предстоящото развитие на комплекса, включително откриването на търговски обект на Lidl, което ще засили още повече търговската привлекателност на локацията.
Имотът представлява изключително рядка възможност за позициониране на бизнес с мащаб и присъствие в една от най-престижните и комуникативни части на Велико Търново, съчетавайки стратегическа локация, функционално разпределение и значителен потенциал за развитие.
Помещението заема ключова позиция с лице към две улици и достъп от главния булевард ,,Христо Ботев''. Локацията се характеризира с интензивен пешеходен и автомобилен трафик, изградена инфраструктура и постоянна бизнес активност, което я позиционира като една от най-търсените търговски зони в града.
Наличието на два самостоятелни входа позволява независима експлоатация на отделните помещения, а вътрешната връзка между нивата чрез стълбище осигурява допълнителна функционалност и възможност за комбинирано използване.
Този заслужаващ вашето внимание бизнес имот е с обща разгъната застроена площ от 1007 кв.м., функционално разпределена между две основни нива партер и подземно ниво (-1), както и прилежащи общи части, включително входно фоайе, комуникационни пространства и тераса.
Партерното ниво е с площ от 271 кв.м. и предлага просторни, отворени пространства с директен достъп от улицата, което го прави изключително подходящо за развиване на търговска дейност или заведение. Разпределението позволява обособяване на различни функционални зони зала за клиенти, барова част, кухня и обслужващи помещения.
Обектът е особено подходящ за ресторант, като съществува възможност за допълнително наемане на тераса с площ от 181 кв.м., която значително увеличава капацитета и атрактивността на заведението.
Подземното ниво (-1) е с площ от 555 кв.м. и е организирано като самостоятелна функционална зона. Разпределението включва просторни зали, обслужващи помещения, санитарни възли и складови части, което позволява ефективна организация на дейността. Нивото разполага с отделен вход, което го прави напълно независимо от партерната част и създава възможност за паралелно функциониране на различни бизнес концепции. Благодарение на своята площ, разпределение и изолираност, пространството е изключително подходящо за нощен бар, клуб или дискотека.
Цялостната конфигурация на имота предоставя отлични възможности, както за самостоятелно, така и за комбинирано използване на двете нива, в зависимост от инвестиционната концепция и бизнес стратегията. Разпределението му е съобразено с обслужването на значителен поток от хора, като предлага гъвкавост при преустройство и адаптация към различни бизнес концепции. Пространствата могат да бъдат използвани както съвместно, така и разделени, в зависимост от нуждите на бъдещия наемател.
В непосредствена близост до имота са разположени ключови административни, търговски и обществени обекти, включително банкови институции, заведения, магазини и учебни заведения, сред които Великотърновски университет Св. св. Кирил и Методий . Районът е динамичен и активен през целия ден, като съчетава бизнес среда и постоянен човекопоток. Допълнително предимство е предстоящото развитие на комплекса, включително откриването на търговски обект на Lidl, което ще засили още повече търговската привлекателност на локацията.
Имотът представлява изключително рядка възможност за позициониране на бизнес с мащаб и присъствие в една от най-престижните и комуникативни части на Велико Търново, съчетавайки стратегическа локация, функционално разпределение и значителен потенциал за развитие.
ID: 147741606
Контакт с продавача
xxx xxx xxx

