Бизнес
Цена на кв.м: 1444.04
Брой етажи на сградата: 3
Квадратура: 277 кв.м
Квадратура на двора: 380 кв.м
Година на строителство: 2025 г.
Строителство: Тухла
Отопление: Електричество
Състояние на сградата: В строеж
Особености: канализация, затворен комплекс
Описание
БЕЗ КОМИСИОНА ОТ КУПУВАЧА! ЗАПОЧНАЛ СТРОЕЖ! ЕРА Варна Тренд предлага за продажба комплекс от къщи в м-т Зеленика, на 500 м от главен път, представляващ съвременен жилищен проект, състоящ се от три еднофамилни къщи, всяка с РЗП 277 кв.м. Разположени са на 10 минути от центъра на Варна, предлагащи комфорт и спокойствие в зелена среда. Къщите са триетажни, със следното разпределение:
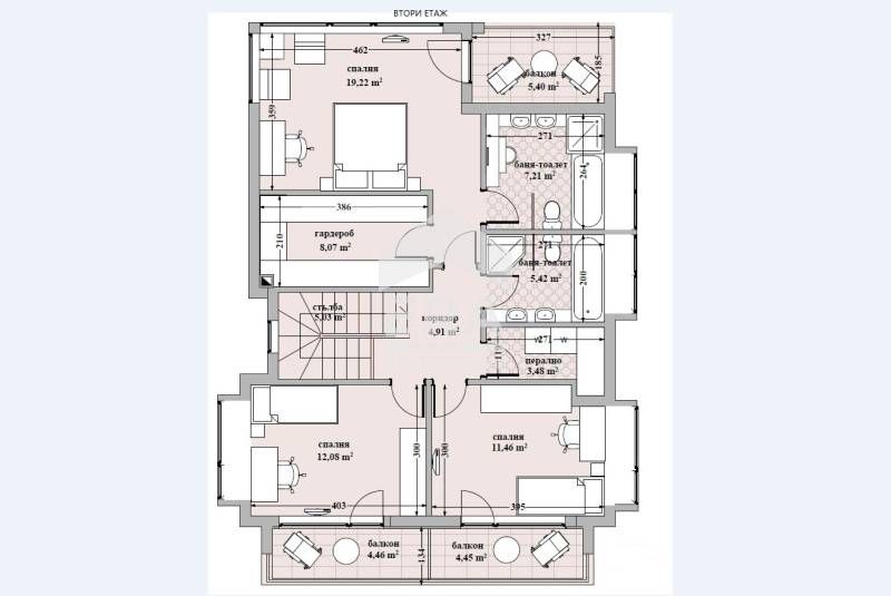
Първо партерно ниво със застроена площ 91,23 кв.м се състои от просторна дневна с кухнанески бокс и трапезария (53,61 кв.м), с директен излаз към двора, спалня (9,59 кв.м) с английски двор, коридор (4,56 кв.м), баня с тоалетна (3,45 кв.м) и допълнителни помещения (7,48 кв.м и 5,37 кв.м), подходящи за фитнес, сауна или склад. Вътрешно стълбище води до второ ниво (първи етаж) със застроена площ 75,5 кв.м, включващо голяма дневна с кухня и трапезария (37,17 кв.м), с излаз на широка веранда (27 кв.м), кабинет или спалня (9,59 кв.м), коридор (5,75 кв.м) и баня с тоалетна (3,05 кв.м). Вътрешно стълбище води до трето ниво (втори етаж) със застроена площ 109,56 кв.м, където има две детски стаи (11,46 кв.м и 12,08 кв.м), всяка с излаз на балкон (съответно 4,45 кв.м и 4,46 кв.м), главна спалня (19,22 кв.м) с гардеробна (8,07 кв.м) и собствена баня с тоалетна (7,21 кв.м), също с излаз на балкон (5,4 кв.м), коридор (4,91 кв.м), перално помещение (3,48 кв.м) и допълнителна баня с тоалетна (5,42 кв.м). Височината на таваните е 3.4 м, осигуряваща усещане за простор. Големи прозорци, позволяващи обилно естествено осветление (в коридора на втори етаж чрез покривен прозорец VELUX).
СТЕПЕН НА ЗАВЪРШЕНОСТ:
Тавани – гипсокартон на конструкция с минерална вата, шпаклован и готов за боя. Стени – гладко измазани. Под на стаи и бани – циментова замазка. Електроинсталация – завършена по проект, готова за монтиране на ключове и контакти по избор на клиента. Възможност за промяна по индивидуален проект. Отопление/климатизация – възможност за инсталиране на камина на два от етажите, подготовка за подово отопление с термопомпа, положени кабели, тръби и стойки за външни тела климатици. Дограма - PVC, 6-камерна REHAU, троен стъклопакет, двустранно отваряне. Покрив- плосък, наклонен, топлоизолиран с 10 см XPS. Замазка за защита на двупластовата хидроизолация със завършващ слой минерална посипка. Подготовка за поставяне на соларни панели и фотоволтаици. Топлоизолация фасади – 12 см EPS с покритие от еластична, устойчива на агресивна среда, паропропусклива и водоотблъскваща силикат-силиконова мазилка Ceresit. Елементи от фасадата ще са завършени с естествен камък Травертин. Входна врата Hormann. Ел. захранване – 3-фазно. Изградени огради към външни граници и съседи по индивидуален дизайн. Изградени пътеки около сградите. Фасадно осветление. Подготовка за видеонаблюдение на двор и вход. Подготовка за автоматизирана поливна система.
Къщите са на етап на строителство - започнал строеж. Ще бъдат въведени в експлоатация (Акт 16) през 2027 г. Всеки дом разполага с прилежащ двор с площ 380 кв.м, разделен на две нива с оформени тераси и веранди, с открит паркинг за два автомобила, с възможност за закриване с лека конструкция. Предлагат се три типа къщи с цени: Къща „A“ - 420 000 евро, Къща „B“ - 400 000 евро, Къща „C“ - 400 000 евро.
Комплексът от къщи се намира на 500 м от главен път, в местност Зеленика, до кв. Галата, район Аспарухово, със следните удобства:
Плаж – 1 км
Поща – 1,5 км
Супермаркет – 500 м
Ж.П. гара – 10 км
Летище – 16 км
Университет – 12 км
Спирка на градски транспорт – 300 м
Училище – 2 км
Болница – 2 км
Оферта №0221245
Първо партерно ниво със застроена площ 91,23 кв.м се състои от просторна дневна с кухнанески бокс и трапезария (53,61 кв.м), с директен излаз към двора, спалня (9,59 кв.м) с английски двор, коридор (4,56 кв.м), баня с тоалетна (3,45 кв.м) и допълнителни помещения (7,48 кв.м и 5,37 кв.м), подходящи за фитнес, сауна или склад. Вътрешно стълбище води до второ ниво (първи етаж) със застроена площ 75,5 кв.м, включващо голяма дневна с кухня и трапезария (37,17 кв.м), с излаз на широка веранда (27 кв.м), кабинет или спалня (9,59 кв.м), коридор (5,75 кв.м) и баня с тоалетна (3,05 кв.м). Вътрешно стълбище води до трето ниво (втори етаж) със застроена площ 109,56 кв.м, където има две детски стаи (11,46 кв.м и 12,08 кв.м), всяка с излаз на балкон (съответно 4,45 кв.м и 4,46 кв.м), главна спалня (19,22 кв.м) с гардеробна (8,07 кв.м) и собствена баня с тоалетна (7,21 кв.м), също с излаз на балкон (5,4 кв.м), коридор (4,91 кв.м), перално помещение (3,48 кв.м) и допълнителна баня с тоалетна (5,42 кв.м). Височината на таваните е 3.4 м, осигуряваща усещане за простор. Големи прозорци, позволяващи обилно естествено осветление (в коридора на втори етаж чрез покривен прозорец VELUX).
СТЕПЕН НА ЗАВЪРШЕНОСТ:
Тавани – гипсокартон на конструкция с минерална вата, шпаклован и готов за боя. Стени – гладко измазани. Под на стаи и бани – циментова замазка. Електроинсталация – завършена по проект, готова за монтиране на ключове и контакти по избор на клиента. Възможност за промяна по индивидуален проект. Отопление/климатизация – възможност за инсталиране на камина на два от етажите, подготовка за подово отопление с термопомпа, положени кабели, тръби и стойки за външни тела климатици. Дограма - PVC, 6-камерна REHAU, троен стъклопакет, двустранно отваряне. Покрив- плосък, наклонен, топлоизолиран с 10 см XPS. Замазка за защита на двупластовата хидроизолация със завършващ слой минерална посипка. Подготовка за поставяне на соларни панели и фотоволтаици. Топлоизолация фасади – 12 см EPS с покритие от еластична, устойчива на агресивна среда, паропропусклива и водоотблъскваща силикат-силиконова мазилка Ceresit. Елементи от фасадата ще са завършени с естествен камък Травертин. Входна врата Hormann. Ел. захранване – 3-фазно. Изградени огради към външни граници и съседи по индивидуален дизайн. Изградени пътеки около сградите. Фасадно осветление. Подготовка за видеонаблюдение на двор и вход. Подготовка за автоматизирана поливна система.
Къщите са на етап на строителство - започнал строеж. Ще бъдат въведени в експлоатация (Акт 16) през 2027 г. Всеки дом разполага с прилежащ двор с площ 380 кв.м, разделен на две нива с оформени тераси и веранди, с открит паркинг за два автомобила, с възможност за закриване с лека конструкция. Предлагат се три типа къщи с цени: Къща „A“ - 420 000 евро, Къща „B“ - 400 000 евро, Къща „C“ - 400 000 евро.
Комплексът от къщи се намира на 500 м от главен път, в местност Зеленика, до кв. Галата, район Аспарухово, със следните удобства:
Плаж – 1 км
Поща – 1,5 км
Супермаркет – 500 м
Ж.П. гара – 10 км
Летище – 16 км
Университет – 12 км
Спирка на градски транспорт – 300 м
Училище – 2 км
Болница – 2 км
Оферта №0221245
ID: 143716785
Контакт с продавача
xxx xxx xxx

