Бизнес
Описание
БЕЗ КОМИСИОНА! ВЕЧЕ С АКТ 16! ЕРА Варна Тренд представя най-новото си ексклузивно предложение - жилищен комплекс Възраждане Блок 166. Сградата е със съвременен дизайн, добра функция, приветлив и свеж за околната среда облик. Качествени строителни материали, съчетаващи стъкло и дървесен декор в оформлението на шахматно разположените балкони. Състои се от 11 етажа, като е разделена на три входа, всеки обслужващ по три апартамента на етаж. Предлагат се двустайни и тристайни жилища с вариации в типовите разпределения и квадратури, благоприятно изложение и красива панорама от по-високите етажи. Партерът и подземният етаж на сградата са предвидени за паркиране, като по този начин се осигурява свободен южен двор със зелени площи за почивка. Предвидено е отопление с ТЕЦ от фирма Веолия, както и чрез климатици, скрити в обособени ниши в балконите. Сградата е с издадено Разрешение за ползване (Акт 16) от месец юли 2025 г.
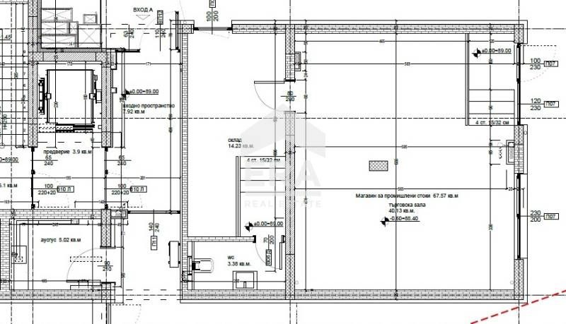
Предлаганият за продажба магазин е с чиста застроена площ 67,57 кв.м (78,29 кв.м с общите части), разположен на първи партерен етаж. Имотът включва търговска зала (40,13 кв.м), складово помещение (14,23 кв.м) и тоалетна (3,38 кв.м). Изложението е изток. Статутът е на магазин за промишлени стоки.
Имотът се продава необзаведен, завършен до степен БДС, с поставена ПВЦ дограма.
Оферта №0220225
Предлаганият за продажба магазин е с чиста застроена площ 67,57 кв.м (78,29 кв.м с общите части), разположен на първи партерен етаж. Имотът включва търговска зала (40,13 кв.м), складово помещение (14,23 кв.м) и тоалетна (3,38 кв.м). Изложението е изток. Статутът е на магазин за промишлени стоки.
Имотът се продава необзаведен, завършен до степен БДС, с поставена ПВЦ дограма.
Оферта №0220225
ID: 139473245
Контакт с продавача
xxx xxx xxx

