Частна
Описание
Проект в стил " Класика " !
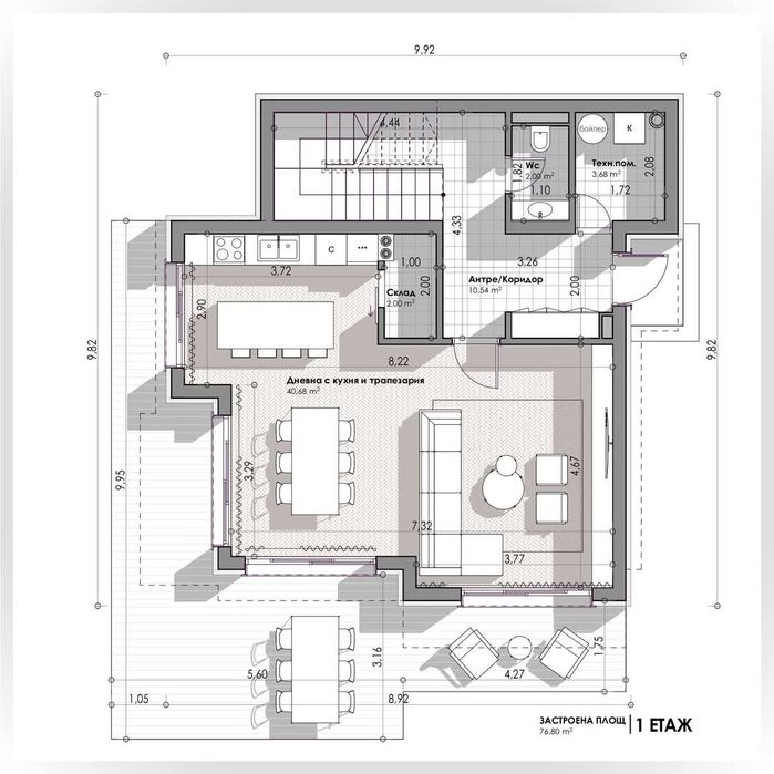
Застроена площ - 210 кв.м.
Площ на парцела - 438 кв.м.
Ниво партер :
- изглед и изход към дворно пространство
- волно съчетание на слънчева дневна с просторна трапезария
- санитарен възел.
Етаж 2 :
- три просторни спални ( една от които със самостоятелна баня)
- санитарен възел на етажа
- тераси .
Съдействие за ипотечен кредит, специално разработен за финансиране на сглобяеми къщи .
Комуникацията е ключът към положителния резултат !
На посочения тел.номер
за връзка 08********86 ,
от
консултант експерт,
ще получите
практическа и обективна информация
в отговори
за проектиране и изграждане
в етапи и строителни решения.
ГЕОДЕЗИЯ :
-трасиране на имотни граници
-трасиране на оси на сгради и съоръжения
-заснемане с цеп проучване и проектиране на сгради и съоръжения
-изработване на схема на самостоятелен обект в сграда за нанасяне в Кадастъра;
-геодезическо заснемане на сгради и имотни граници за нанасяне в Кадастралната карта;
-инвестиционно проектиране, изработване на ПУП-ПР, ПРЗ'
-вертикални планировки
-трасировъчни планове
-GPS измервания
-измерване и изчисление на обем на изкопи и насипи
Застроена площ - 210 кв.м.
Площ на парцела - 438 кв.м.
Ниво партер :
- изглед и изход към дворно пространство
- волно съчетание на слънчева дневна с просторна трапезария
- санитарен възел.
Етаж 2 :
- три просторни спални ( една от които със самостоятелна баня)
- санитарен възел на етажа
- тераси .
Съдействие за ипотечен кредит, специално разработен за финансиране на сглобяеми къщи .
Комуникацията е ключът към положителния резултат !
На посочения тел.номер
за връзка 08********86 ,
от
консултант експерт,
ще получите
практическа и обективна информация
в отговори
за проектиране и изграждане
в етапи и строителни решения.
ГЕОДЕЗИЯ :
-трасиране на имотни граници
-трасиране на оси на сгради и съоръжения
-заснемане с цеп проучване и проектиране на сгради и съоръжения
-изработване на схема на самостоятелен обект в сграда за нанасяне в Кадастъра;
-геодезическо заснемане на сгради и имотни граници за нанасяне в Кадастралната карта;
-инвестиционно проектиране, изработване на ПУП-ПР, ПРЗ'
-вертикални планировки
-трасировъчни планове
-GPS измервания
-измерване и изчисление на обем на изкопи и насипи
ID: 142965987
Контакт с продавача
xxx xxx xxx
Добавена 29 декември 2025 г.
Архитектурно студио/ Геодезия /
Потребител
Локация