Бизнес
Цена на кв.м: 1300
Тип апартамент: 3 - стаен
Квадратура: 100 кв.м
Година на строителство: 2026 г.
Строителство: Тухла
Етаж: 3-ти
Брой етажи на сградата: 5
Последен етаж
Отопление: Газ
Обзавеждане: Необзаведен
Състояние на сградата: В строеж
Преход: Без преход
Особености: асансьор, гараж, ипотека, лизинг, паркинг, саниран, видеонаблюдение, затворен комплекс
Описание
Сграда Аврора град Перник
1300 €
НОВА ЖИЛИЩНА СГРАДА – МОДЕРЕН ДОМ СЪС СТИЛ И УДОБСТВО!
Локация: Отлична локация с лесен достъп до градска инфраструктура, спокойна среда и панорамна гледка към града и природата. В близост до паркове, магазини, детски градини и училища.
Описание на сградата:
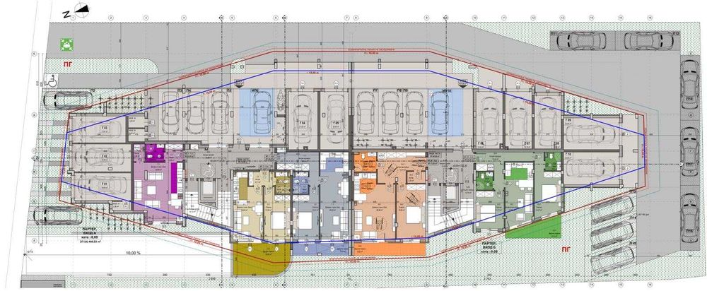
Съвременна жилищна сграда с изчистена архитектура и функционално разпределение на апартаментите. Сградата разполага с два входа (Вход А и Вход Б), асансьори и паркоместа. Построена с висококачествени материали, с внимание към детайла и енергийна ефективност.
Етажност: 5 надземни етажа
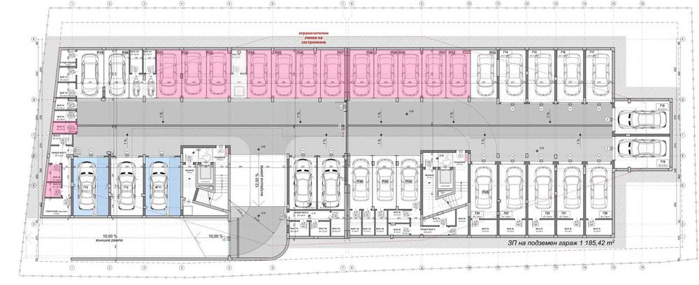
Паркоместа:
Надземни паркоместа
Подземен гараж с възможност за закупуване на повече от едно паркомясто
Озеленяване: Зелени площи около сградата
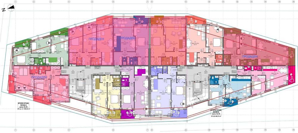
Налични апартаменти:
1-стаен, 2-стаен и 3-стаен апартаменти
Площ от 50 до 120 кв.м.
Просторни тераси с гледка
Апартаменти с южно и западно изложение
Прекрасно разпределение, подходящо както за живеене, така и за инвестиция
Разпределение по етажи:
Подробни архитектурни планове на всеки етаж
Част от апартаментите вече са ПРОДАДЕНИ
Статус: Акт 14
Очакван Акт 16: Края на 2026г.
1300 €
НОВА ЖИЛИЩНА СГРАДА – МОДЕРЕН ДОМ СЪС СТИЛ И УДОБСТВО!
Локация: Отлична локация с лесен достъп до градска инфраструктура, спокойна среда и панорамна гледка към града и природата. В близост до паркове, магазини, детски градини и училища.
Описание на сградата:
Съвременна жилищна сграда с изчистена архитектура и функционално разпределение на апартаментите. Сградата разполага с два входа (Вход А и Вход Б), асансьори и паркоместа. Построена с висококачествени материали, с внимание към детайла и енергийна ефективност.
Етажност: 5 надземни етажа
Паркоместа:
Надземни паркоместа
Подземен гараж с възможност за закупуване на повече от едно паркомясто
Озеленяване: Зелени площи около сградата
Налични апартаменти:
1-стаен, 2-стаен и 3-стаен апартаменти
Площ от 50 до 120 кв.м.
Просторни тераси с гледка
Апартаменти с южно и западно изложение
Прекрасно разпределение, подходящо както за живеене, така и за инвестиция
Разпределение по етажи:
Подробни архитектурни планове на всеки етаж
Част от апартаментите вече са ПРОДАДЕНИ
Статус: Акт 14
Очакван Акт 16: Края на 2026г.
ID: 145762018
Контакт с продавача
xxx xxx xxx
Добавена 26 декември 2025 г.
Апартаментите в новостроящи се блок гр. ПЕРНИК
130000 лв. / 66467.94 €
Потребител
Локация
гр. Перник, Изток
Област Перник