Бизнес
Цена на кв.м: 1394.74
Тип апартамент: 2 - стаен
Квадратура: 57 кв.м
Година на строителство: 1950 г.
Строителство: Тухла
Етаж: 1-ви
Брой етажи на сградата: 5
Последен етаж
Отопление: Електричество
Обзавеждане: Необзаведен
Състояние на сградата: Завършена
Преход: Без преход
Описание
Имоти Премиер представя
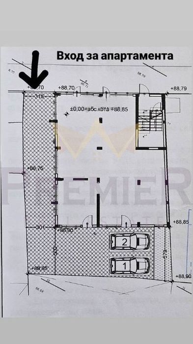
Апартамент в жилищна сграда със самостоятелен вход.
Разпределение:
Спалня
Баня с тоалетна
Голяма всекидневна с кухня
Възможност за изграждане на допълнително помещение (детска стая или втора спалня)
Включено в цената:
300 м² дворно място
2 паркоместа
Изложение: Южно – топло и слънчево през зимата, светло и прохладно през лятото.
Документи:
Акт 16
Всички необходими документи за продажба
Един собственик
Код на Имота: 381576
Апартамент в жилищна сграда със самостоятелен вход.
Разпределение:
Спалня
Баня с тоалетна
Голяма всекидневна с кухня
Възможност за изграждане на допълнително помещение (детска стая или втора спалня)
Включено в цената:
300 м² дворно място
2 паркоместа
Изложение: Южно – топло и слънчево през зимата, светло и прохладно през лятото.
Документи:
Акт 16
Всички необходими документи за продажба
Един собственик
Код на Имота: 381576
ID: 147350561
Контакт с продавача
xxx xxx xxx

