Бизнес
Цена на кв.м: 1245.10
Тип апартамент: 2 - стаен
Квадратура: 102 кв.м
Година на строителство: 2026 г.
Строителство: Тухла
Етаж: 1-ви
Брой етажи на сградата: 5
Последен етаж
Отопление: Електричество
Обзавеждане: Необзаведен
Състояние на сградата: В строеж
Преход: Без преход
Особености: асансьор, лизинг, саниран, затворен комплекс
Описание
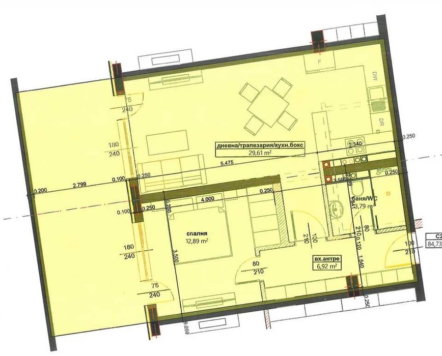
редлагаме ви апартамент на първи жилищен етаж, с една спалня, дневна с кухненски бокс, коридор, антре, баня с тоалетна и голяма тераса. На същия етаж има килер към апартамента с площ 4.59 кв.м. Общата квадратура е 101.57кв.м., от които 84.73 кв.м. е чистата жилищна площ. Изложение – югозапад. Степента на завършеност е по БДС, 6 камерна, немска PVC дограма – златен дъб, с австрийски обков, блиндирана входна врата, външна топлоизолация.
Към всеки апартамент може да бъде закупено отделно паркомясто или гараж.
Сградата е на етап Акт 14, Акт 16 се очаква най-късно до май 2026г.
Подовите настилки в общите части са от гранитни плочи, стълбищата са с алуминиеви парапети и латекс на стените. Има асансьор, който свързва подземния паркинг с жилищната част.
Реф.№ 34056
Инвеститорът предлага гъвкави схеми на плащане.
Към всеки апартамент може да бъде закупено отделно паркомясто или гараж.
Сградата е на етап Акт 14, Акт 16 се очаква най-късно до май 2026г.
Подовите настилки в общите части са от гранитни плочи, стълбищата са с алуминиеви парапети и латекс на стените. Има асансьор, който свързва подземния паркинг с жилищната част.
Реф.№ 34056
Инвеститорът предлага гъвкави схеми на плащане.
ID: 146983252
Контакт с продавача
xxx xxx xxx
