Бизнес
Цена на кв.м: 1650
Тип апартамент: 2 - стаен
Квадратура: 93 кв.м
Година на строителство: 2025 г.
Строителство: Тухла
Етаж: 1-ви
Брой етажи на сградата: 5
Последен етаж
Отопление: Електричество
Обзавеждане: Необзаведен
Състояние на сградата: В строеж
Преход: Без преход
Особености: асансьор
Описание
ЕРА Недвижими имоти – офис Лидер, продава апартамент A1, разположен в новострояща се сграда, която ще премине през цялостна реконструкция по съвременен архитектурен проект, съчетаващ естетика, функционалност и високо качество на изпълнение.
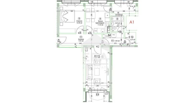
Апартаментът е с обща площ от 93 кв.м и е разположен на втори етаж (първи жилищен). Вътрешното разпределение е добре премислено, с ясно обособени дневни и нощни зони, което осигурява удобство и комфорт в ежедневието. Жилището се състои от просторна дневна зона, отделна кухня с трапезария, уютна спалня, баня със санитарен възел, както и функционален килер, който предлага допълнително пространство за съхранение. Помещенията са с естествена светлина през целия ден, благодарение на ориентацията и големите прозорци, а усещането за простор и лекота е водещо в цялостното преживяване на жилището. Така предложеното разпределение може да бъде променено по желание на клиента.
Към апартамента принадлежи самостоятелен склад с площ от 7 кв.м., разположен в сутеренната част на сградата, както и 32 кв.м. идеални части от земята. За максимално удобство на бъдещите собственици е предвидена и възможност за закупуване на гараж.
Сградата ще бъде изпълнена по най-високи съвременни стандарти, с модерна фасада, луксозно завършени общи части и енергийно ефективни решения, които гарантират дългосрочна стойност и комфорт. Проектът е изключително подходящ както за постоянно обитаване, така и като инвестиция с висока доходност, предвид отличното местоположение и нарастващото търсене в района.
Сградата се намира в спокоен, но стратегически централен район на град Русе, с лесен достъп до всички ключови точки на града. Локацията предлага перфектен баланс между тишина и достъпност – в близост се намират училища, детски градини, търговски обекти, административни учреждения, както и удобни връзки с градския транспорт. Това превръща имота в идеален избор за хора, които ценят удобството на градския живот, без да правят компромис с уюта и спокойствието на дома си.
Заповядайте да Ви го покажем! Използвайки услугите на агенция за недвижими имоти ЕРА Лидер Вие ще превърнете закупуването на новия си дом в едно приятно изживяване, като получите персонален консултант, който ще се запознае от близо с Вашите изисквания. Възползвайте се от безплатна консултация в нашия офис, където ще ви спестим време , средства и ще Ви запознаем с всички актуални имоти в гр. Русе, отговарящи на Вашето търсене.
ОБАДЕТЕ СЕ ОЩЕ СЕГА ЗА ОГЛЕД: 08********66 Всеки имот предлаган от ЕРА е проверен, посетен на място и заснет от наш консултант. ЕРА е лицензиран КРЕДИТЕН ПОСРЕДНИК и предлага БЕЗПЛАТНА консултация на своите клиенти! Всеки имот предлаган от ЕРА е проверен, посетен на място и заснет от наш консултант. ЕРА Е РЕГИСТРИРАН КЪМ БНБ КРЕДИТЕН ПОСРЕДНИК И КАТО ТАКЪВ ОФИЦИАЛНО ПРЕДОСТАВЯ ВСИЧКИ ВИДОВЕ КРЕДИТИ КЪМ ВСИЧКИ БАНКИ БЕЗПЛАТНО!!! ОБАДЕТЕ СЕ ОЩЕ СЕГА ЗА ОГЛЕД: 08********66
Оферта №6700238
Апартаментът е с обща площ от 93 кв.м и е разположен на втори етаж (първи жилищен). Вътрешното разпределение е добре премислено, с ясно обособени дневни и нощни зони, което осигурява удобство и комфорт в ежедневието. Жилището се състои от просторна дневна зона, отделна кухня с трапезария, уютна спалня, баня със санитарен възел, както и функционален килер, който предлага допълнително пространство за съхранение. Помещенията са с естествена светлина през целия ден, благодарение на ориентацията и големите прозорци, а усещането за простор и лекота е водещо в цялостното преживяване на жилището. Така предложеното разпределение може да бъде променено по желание на клиента.
Към апартамента принадлежи самостоятелен склад с площ от 7 кв.м., разположен в сутеренната част на сградата, както и 32 кв.м. идеални части от земята. За максимално удобство на бъдещите собственици е предвидена и възможност за закупуване на гараж.
Сградата ще бъде изпълнена по най-високи съвременни стандарти, с модерна фасада, луксозно завършени общи части и енергийно ефективни решения, които гарантират дългосрочна стойност и комфорт. Проектът е изключително подходящ както за постоянно обитаване, така и като инвестиция с висока доходност, предвид отличното местоположение и нарастващото търсене в района.
Сградата се намира в спокоен, но стратегически централен район на град Русе, с лесен достъп до всички ключови точки на града. Локацията предлага перфектен баланс между тишина и достъпност – в близост се намират училища, детски градини, търговски обекти, административни учреждения, както и удобни връзки с градския транспорт. Това превръща имота в идеален избор за хора, които ценят удобството на градския живот, без да правят компромис с уюта и спокойствието на дома си.
Заповядайте да Ви го покажем! Използвайки услугите на агенция за недвижими имоти ЕРА Лидер Вие ще превърнете закупуването на новия си дом в едно приятно изживяване, като получите персонален консултант, който ще се запознае от близо с Вашите изисквания. Възползвайте се от безплатна консултация в нашия офис, където ще ви спестим време , средства и ще Ви запознаем с всички актуални имоти в гр. Русе, отговарящи на Вашето търсене.
ОБАДЕТЕ СЕ ОЩЕ СЕГА ЗА ОГЛЕД: 08********66 Всеки имот предлаган от ЕРА е проверен, посетен на място и заснет от наш консултант. ЕРА е лицензиран КРЕДИТЕН ПОСРЕДНИК и предлага БЕЗПЛАТНА консултация на своите клиенти! Всеки имот предлаган от ЕРА е проверен, посетен на място и заснет от наш консултант. ЕРА Е РЕГИСТРИРАН КЪМ БНБ КРЕДИТЕН ПОСРЕДНИК И КАТО ТАКЪВ ОФИЦИАЛНО ПРЕДОСТАВЯ ВСИЧКИ ВИДОВЕ КРЕДИТИ КЪМ ВСИЧКИ БАНКИ БЕЗПЛАТНО!!! ОБАДЕТЕ СЕ ОЩЕ СЕГА ЗА ОГЛЕД: 08********66
Оферта №6700238
ID: 144929180
Контакт с продавача
xxx xxx xxx