Бизнес
Цена на кв.м: 3130.27
Тип апартамент: 4 - стаен
Квадратура: 279 кв.м
Година на строителство: 2023 г.
Строителство: Тухла
Етаж: 3-ти
Брой етажи на сградата: 11
Последен етаж
Отопление: Електричество
Обзавеждане: Необзаведен
Състояние на сградата: Завършена
Преход: С преход
Особености: асансьор, гараж, затворен комплекс
Описание
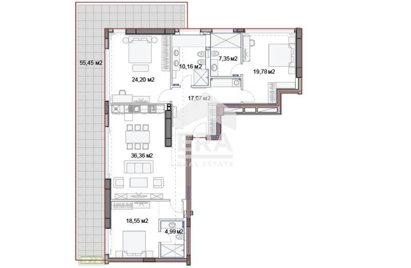
ЕРА Лайф обявява за продажба елегантен четиристаен апартамент с площ 279,76 м2, разположен на трети етаж в луксозен затворен комплекс на метри от плажната ивица. Имотът е със следното разпределение: антре (17,07) м2, дневен тракт с кухненска част (36,36) м2, три спални (24,20 м2, 19,78 м2 и 18,55 м2), баня с тоалетна (10,16) м2, втора баня с тоалетна (7,35) м2, санитарно помещение (4,99) м2, както и голяма тераса (55,45) м2. Изложение: изток / запад.
Статут: апартамент. Към апартамента се полага паркомясто, чиято цена е включена в таксата за поддръжка и управление на комплекса (14E/м2 на годишна база).
Жилището се намира в сграда със съвременна архитектура на брега на морето. В строежа са вложени най-висок клас материали и качествено изпълнение. Луксозните стълбища и общи части имат изградени вентилация, канализационна инсталация, включваща инсталация за отводняване на климатичните тела, пожароизвестителна инсталация, заземителна инсталация, надеждна електро инсталация с висока степен на защита. Предвидено е дежурно и евакуационно осветление. Отоплението, вентилацията и климатизацията в сградата са осигурени чрез напълно изградена инверторна VRV климатична система с охлаждане и отопление на фирма DAIKIN, с директно изпарение, с монтирани вътрешни тела за скрит таванен монтаж.
Сградата е изпълнена с вентилируема фасада с топлоизолация от минерална вата, а плоския покрив е топло, паро и хидро изолиран, което гарантира качество и дълготрайност. Прозорците са реализирани със стъклопакети – висок клас алуминиева дограма Schüco. Три броя панорамни асансьори на водещия световен производител Schindlеr са на разположение на живущите.
Имотът е подходящ за целогодишно живеене. Съчетанието от естествен парк с дървесни видове и красива плажна ивица, правят уникално предложението за продажба на този апартамент. Предлага се с цялото налично обзавеждане и оборудване.
Разположен в малък тих залив с източно изложение, комплекса предлага великолепни условия за развлечения и отмора. Само на 8 км. южно от Златни пясъци, на 10 км. от град Варна и на 16 км. от Летище Варна, комплексът съчетава в себе си добра локация и приказно място за релакс. Комплекс Sunny Day е разположен между естествен парк с редки дървесни видове и красива плажна ивица. Код: 0706090
Оферта №0709027
Статут: апартамент. Към апартамента се полага паркомясто, чиято цена е включена в таксата за поддръжка и управление на комплекса (14E/м2 на годишна база).
Жилището се намира в сграда със съвременна архитектура на брега на морето. В строежа са вложени най-висок клас материали и качествено изпълнение. Луксозните стълбища и общи части имат изградени вентилация, канализационна инсталация, включваща инсталация за отводняване на климатичните тела, пожароизвестителна инсталация, заземителна инсталация, надеждна електро инсталация с висока степен на защита. Предвидено е дежурно и евакуационно осветление. Отоплението, вентилацията и климатизацията в сградата са осигурени чрез напълно изградена инверторна VRV климатична система с охлаждане и отопление на фирма DAIKIN, с директно изпарение, с монтирани вътрешни тела за скрит таванен монтаж.
Сградата е изпълнена с вентилируема фасада с топлоизолация от минерална вата, а плоския покрив е топло, паро и хидро изолиран, което гарантира качество и дълготрайност. Прозорците са реализирани със стъклопакети – висок клас алуминиева дограма Schüco. Три броя панорамни асансьори на водещия световен производител Schindlеr са на разположение на живущите.
Имотът е подходящ за целогодишно живеене. Съчетанието от естествен парк с дървесни видове и красива плажна ивица, правят уникално предложението за продажба на този апартамент. Предлага се с цялото налично обзавеждане и оборудване.
Разположен в малък тих залив с източно изложение, комплекса предлага великолепни условия за развлечения и отмора. Само на 8 км. южно от Златни пясъци, на 10 км. от град Варна и на 16 км. от Летище Варна, комплексът съчетава в себе си добра локация и приказно място за релакс. Комплекс Sunny Day е разположен между естествен парк с редки дървесни видове и красива плажна ивица. Код: 0706090
Оферта №0709027
ID: 147601799
Контакт с продавача
xxx xxx xxx

