Бизнес
Цена на кв.м: 2500
Тип апартамент: 4 - стаен
Квадратура: 160 кв.м
Година на строителство: 2026 г.
Строителство: Тухла
Етаж: 2-ри
Брой етажи на сградата: 9
Последен етаж
Отопление: Електричество
Обзавеждане: Необзаведен
Състояние на сградата: Завършена
Преход: Без преход
Описание
Реф. № 012879
Агенция за недвижими имоти BAS Properties предлага за продажба четиристаен апартамент, разположен в нов семеен жилищен комплекс в ж.к. Красно село, гр. София – район, съчетаващ спокойна жилищна среда, зеленина и отлична връзка с центъра на града.
Основни параметри:
- Тип имот: Четиристаен апартамент
- Локация: жк. Красно село, гр. София
- Площ: 160 кв.м.
- Строителство: Тухла
- Година на строеж: 2026 г.
- Етап: След АКТ 15
- Етаж: 2 от 9
- Отопление: Електричество
- Изложение: Югоизток / Югозапад
- Асансьор: Да
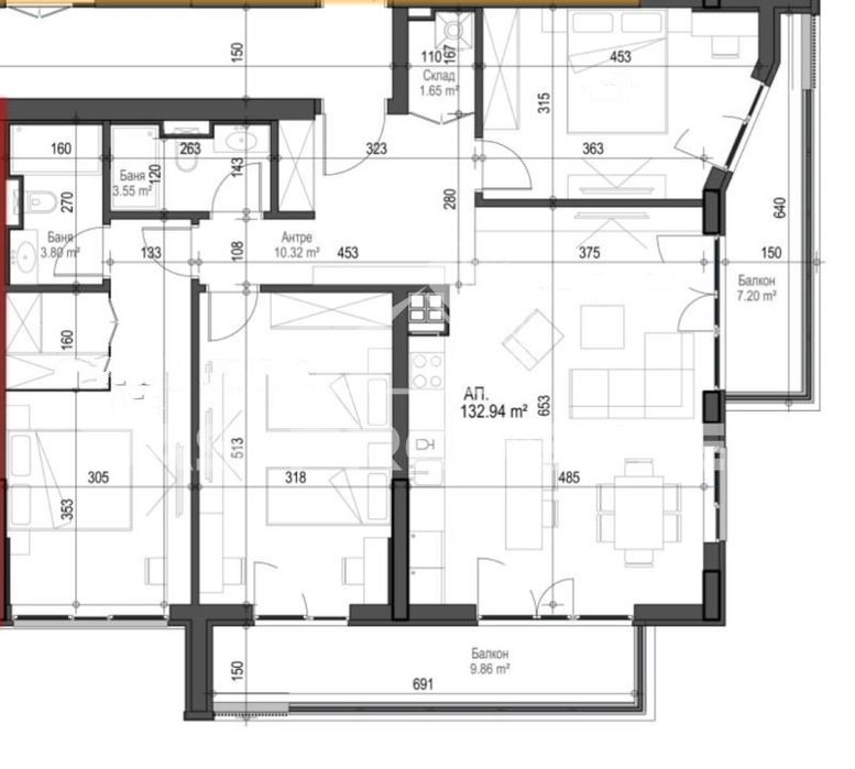
Разпределение:
- Входно антре
- Просторна дневна с кухненски бокс
- Три самостоятелни спални
- Две бани с тоалетни
- Възможност за обособяване на мокро помещение в антрето
- Два балкона
Описание на имота и комплекса:
Апартаментът е разположен на втори етаж и разполага с отлична естествена осветеност през целия ден, благодарение на югоизточното и югозападното изложение. От имота се разкриват приятни гледки към вътрешния двор и зелени площи на комплекса.
Жилището се намира в нов, модерен семеен комплекс, който предлага:
- контролиран достъп
- денонощна охрана
- богато озеленен вътрешен двор
- тиха и спокойна жилищна среда
Комплексът е проектиран с фокус върху комфорт, сигурност и качество на живот, като същевременно осигурява бърз и удобен достъп до централните части на София.
Допълнителна информация:
- Очакван АКТ 16 – началото на март 2026 г.
- Подходящ имот както за собствено семейно жилище, така и за дългосрочна инвестиция
- Отлична локация в един от най-предпочитаните райони на София
Свържете се с нас за повече информация, актуални наличности и огледи.
*Агенцията предлага напълно безплатно съдействие при жилищно кредитиране от банка.
Агенция за недвижими имоти BAS Properties предлага за продажба четиристаен апартамент, разположен в нов семеен жилищен комплекс в ж.к. Красно село, гр. София – район, съчетаващ спокойна жилищна среда, зеленина и отлична връзка с центъра на града.
Основни параметри:
- Тип имот: Четиристаен апартамент
- Локация: жк. Красно село, гр. София
- Площ: 160 кв.м.
- Строителство: Тухла
- Година на строеж: 2026 г.
- Етап: След АКТ 15
- Етаж: 2 от 9
- Отопление: Електричество
- Изложение: Югоизток / Югозапад
- Асансьор: Да
Разпределение:
- Входно антре
- Просторна дневна с кухненски бокс
- Три самостоятелни спални
- Две бани с тоалетни
- Възможност за обособяване на мокро помещение в антрето
- Два балкона
Описание на имота и комплекса:
Апартаментът е разположен на втори етаж и разполага с отлична естествена осветеност през целия ден, благодарение на югоизточното и югозападното изложение. От имота се разкриват приятни гледки към вътрешния двор и зелени площи на комплекса.
Жилището се намира в нов, модерен семеен комплекс, който предлага:
- контролиран достъп
- денонощна охрана
- богато озеленен вътрешен двор
- тиха и спокойна жилищна среда
Комплексът е проектиран с фокус върху комфорт, сигурност и качество на живот, като същевременно осигурява бърз и удобен достъп до централните части на София.
Допълнителна информация:
- Очакван АКТ 16 – началото на март 2026 г.
- Подходящ имот както за собствено семейно жилище, така и за дългосрочна инвестиция
- Отлична локация в един от най-предпочитаните райони на София
Свържете се с нас за повече информация, актуални наличности и огледи.
*Агенцията предлага напълно безплатно съдействие при жилищно кредитиране от банка.
ID: 146918720
Контакт с продавача
xxx xxx xxx

