Навигиране до основното съдържание
Чат

Нотификации

Добави обява
4-стаен апартамент, проект, м-т Манастирски рид, площ 227
4-стаен апартамент, проект, м-т Манастирски рид, площ 227
4-стаен апартамент, проект, м-т Манастирски рид, площ 227
4-стаен апартамент, проект, м-т Манастирски рид, площ 227
4-стаен апартамент, проект, м-т Манастирски рид, площ 227
4-стаен апартамент, проект, м-т Манастирски рид, площ 227
ПромотирайОбнови

Бизнес

Цена на кв.м: 1874.01

Тип апартамент: 4 - стаен

Квадратура: 227 кв.м

Година на строителство: 2027 г.

Строителство: Тухла

Етаж: 4-ти

Брой етажи на сградата: 4

Последен етаж

Отопление: Електричество

Обзавеждане: Необзаведен

Състояние на сградата: Завършена

Преход: Без преход

Описание

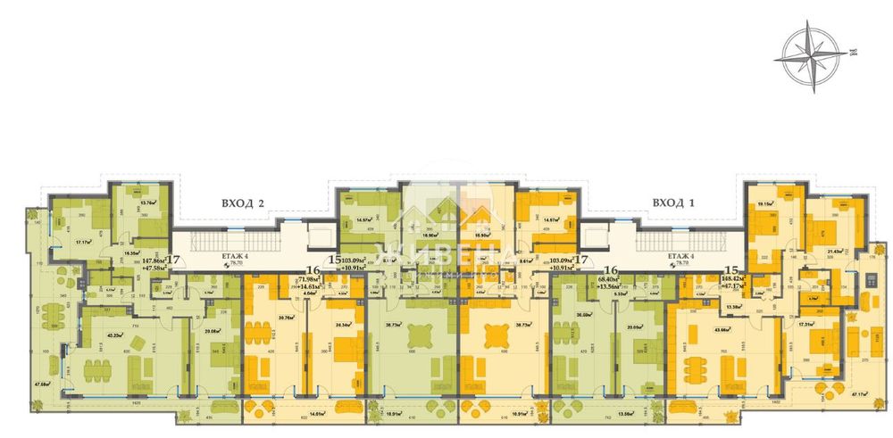
Агенция Живена предлага за продажба голям панорамен четиристаен апартамент с гледка към морето с площ 227 кв.м, разположен на 4-ти етаж в 4-етажна сграда в новоизграждащ се комплекс в местност Манастирски Рид. Разпределението на имота е следното: антре (13.4 кв.м), дневен тракт и трапезария (43.38 кв.м), три спални (17.3 кв.м, 19.15 кв.м и 21.43 кв.м),две бани с тоалетна (4.7 кв.м и 4.3 кв.м), перално помещение/килер (2.88 кв.м) и просторна тераса (47 кв.м). За комплекса: в луксозния жилищен комплекс ще бъдат изградени четири елегантни сгради, разположени на парцел с площ от 15 декара. Сградите са четириетажни и ще се отличават с модерен дизайн и прецизно изпълнение, което гарантира комфорт и удобство за всеки обитател. Всяка сграда е проектирана с внимание към детайла, така че да се впише естествено в околната природа, в съчетание с най-новите технологии за строителство, което осигурява висока енергийна ефективност и устойчивост. Терасите и лоджиите на апартаментите са проектирани така, че дори от първите етажи се разкрива директна морска гледка. Жилищният комплекс ще бъде с контрол на достъпа и денонощна охрана. Ще бъдат осигурени и всички съвременни удобства за цялото семейство, включително басейн на три нива, обграден от зеленина и простор, на територия от 1 декар, с изключителна гледка към морето. Детските съоръжения, зонирани по възраст и изградени от естествени и еко материал. Има избор на апартаменти и може да се закупи паркомясто на цени от 18 300 евро и гараж на цена започващи от 23 000 евро. Комплексът се намира в един от най-живописните и магнетични райони в близост до град Варна – местност Манастирски рид. Комплексът е ситуиран в сърцето на величествена дъбова гора, само на няколко минути пешеходно разстояние от плажа на курортен комплекс Слънчев ден, известен със своите чисти води и широка пясъчна ивица. Агенция Живена извършва необходимите проверки на имота, който сте избрали, организира всички етапи на сделката до нейното финализиране. Оказваме съдействие за отпускане на банков кредит. Оферта № 7447
ID: 145267409

Контакт с продавача

Радостина Иванова

В OLX от юни 2019 г.

Последно онлайн днес в 09:21 ч.

xxx xxx xxx

Добавена 10 октомври 2025 г.

4-стаен апартамент, проект, м-т Манастирски рид, площ 227

425400 €

Потребител

Локация

Location

м-т Манастирски рид

Област Варна

За този потребител

Свали приложението на OLX за твоя телефон!