Бизнес
Цена на кв.м: 2051.07
Тип апартамент: 2 - стаен
Квадратура: 89 кв.м
Година на строителство: 2027 г.
Строителство: Тухла
Етаж: 6-ти
Брой етажи на сградата: 7
Отопление: ТЕЦ
Обзавеждане: Необзаведен
Състояние на сградата: В строеж
Преход: Без преход
Описание
3MO Real Estate представя за продажба двустаен апартамент, разположен на шести етаж от новострояща се жилищна сграда с модерна фасада в ж.к. Дружба 2.
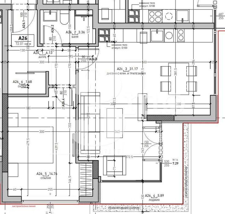
Общата площ на имота е 88,96 кв.м., а застроената е 72,01 кв.м.
Разпределението включва: просторна дневна с кухненски бокс с площ от 31 кв.м., две големи спални, баня с WC, отделно WC и склад.
Изложението му е югоизток и северозапад.
Отоплението е на ТЕЦ.
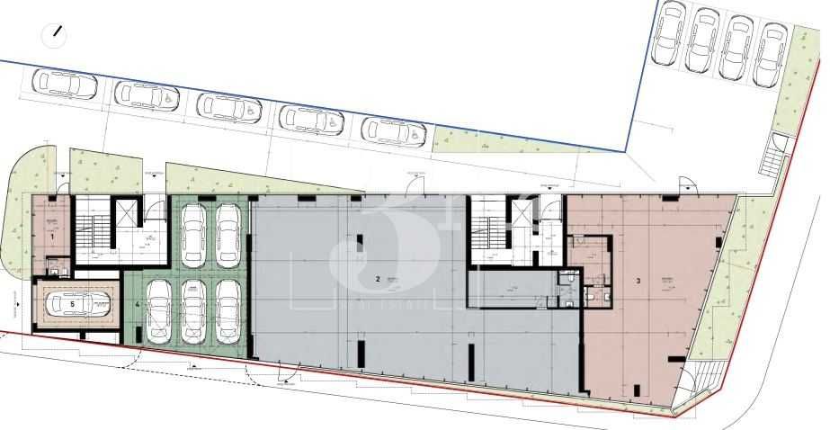
Възможностите за паркиране са с паркоместа на партера и две подземни нива с достъп чрез подемник. Цените на паркоместата са между 20 000 евро и 32 500 евро в зависимост от разположението.
Кварталът е с добра инфраструктура и транспортни връзки.
В близост се намират парк "Езерото", хранителни магазини "Т-Маркет", "Кауфланд", "Била", "Фантастико".
Транспортът е обезпечен с метростанция "Дружба", автобуси № 84, 88, 204, 404, 604 и N4, както и тролей № 4.
Осигурен е бърз достъп до бул. „Цариградско шосе“, бул. „Проф. Цветан Лазаров“ и "Летище София".
Имотите са подходящи както за млади семейства, така и за инвестиция с цел отдаване под наем.
Предлагат се и други типове апартаменти в сградата:
-2-стайни: от 76 до 89 кв.м | цени започващи от 146 966 евро
-3-стайни: от 112 до 119 кв.м | цени започващи от 219 775 евро
Посочените суми са спрямо стандартна схема на плащане, като са възможни и различни схеми с прекалкулиране на цените.
Оферта № 2579
Общата площ на имота е 88,96 кв.м., а застроената е 72,01 кв.м.
Разпределението включва: просторна дневна с кухненски бокс с площ от 31 кв.м., две големи спални, баня с WC, отделно WC и склад.
Изложението му е югоизток и северозапад.
Отоплението е на ТЕЦ.
Възможностите за паркиране са с паркоместа на партера и две подземни нива с достъп чрез подемник. Цените на паркоместата са между 20 000 евро и 32 500 евро в зависимост от разположението.
Кварталът е с добра инфраструктура и транспортни връзки.
В близост се намират парк "Езерото", хранителни магазини "Т-Маркет", "Кауфланд", "Била", "Фантастико".
Транспортът е обезпечен с метростанция "Дружба", автобуси № 84, 88, 204, 404, 604 и N4, както и тролей № 4.
Осигурен е бърз достъп до бул. „Цариградско шосе“, бул. „Проф. Цветан Лазаров“ и "Летище София".
Имотите са подходящи както за млади семейства, така и за инвестиция с цел отдаване под наем.
Предлагат се и други типове апартаменти в сградата:
-2-стайни: от 76 до 89 кв.м | цени започващи от 146 966 евро
-3-стайни: от 112 до 119 кв.м | цени започващи от 219 775 евро
Посочените суми са спрямо стандартна схема на плащане, като са възможни и различни схеми с прекалкулиране на цените.
Оферта № 2579
ID: 146209809
Контакт с продавача
xxx xxx xxx

