Навигиране до основното съдържание
Чат

Нотификации

Добави обява
3D проект на AutoCad за мебели
3D проект на AutoCad за мебели
3D проект на AutoCad за мебели
ПромотирайОбнови

Частна

Описание

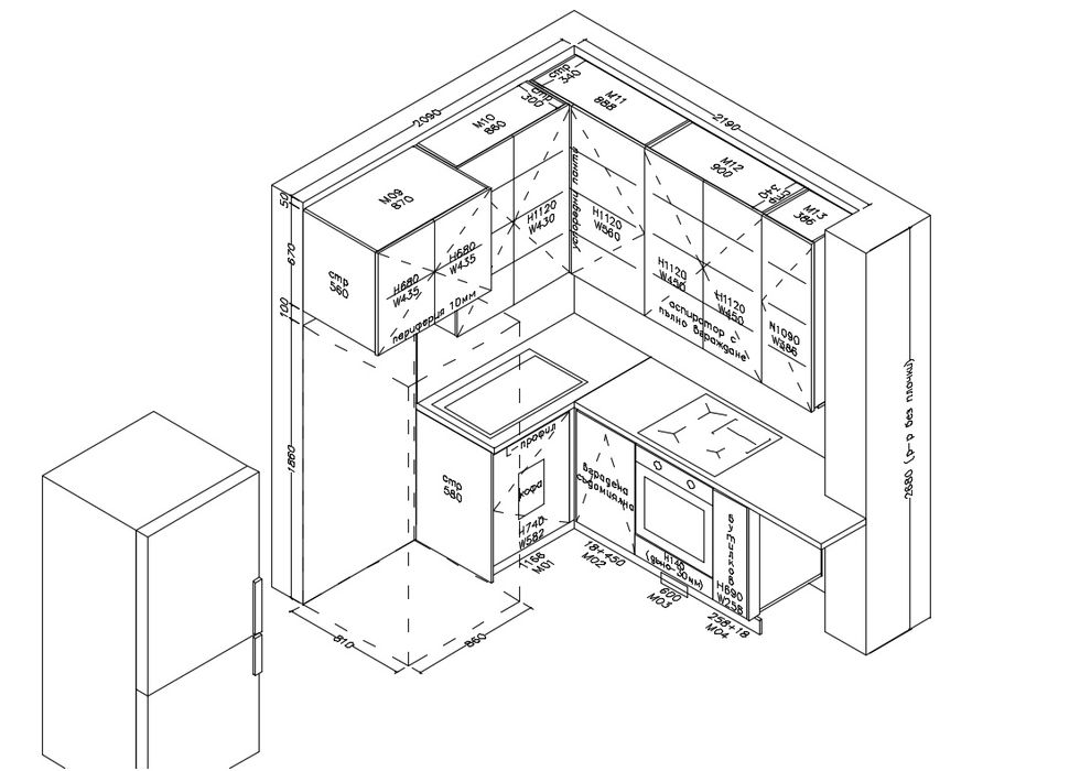
Предлагам чертожни услуги за мебели по ваш размер (като за Бургас мога и лично да взема размерите). Имам 2 години опит в сферата. Цената е по договаряне - според размера на проекта/изделието.
ID: 146824460

Контакт с продавача

User avatar
Facebook connected icon

Stoyan

В OLX от април 2021 г.

Последно онлайн 26 януари 2026 г.

xxx xxx xxx

Добавена 25 януари 2026 г.

3D проект на AutoCad за мебели

Потребител

Локация

Свали приложението на OLX за твоя телефон!